瑞典新国家博物馆建筑设计 | wingardhs
-
项目名称:瑞典新国家博物馆
-
项目地点:瑞典
-
设计公司:wingardhs 
2012年,Wingårdh建筑事务所和Wikerstål建筑事务所共同接受委托,对坐落在斯德哥尔摩的国家博物馆进行全面改造设计。次年,博物馆闭馆,开始施工。此次改造设计的设计理念是——打造一个耐久的多功能博物馆,具体通过以下几点来实现:
重新利用自然光和外部的景观;
将之前用于内部活动的空间改为公共性空间;
改善交通流线。游客流线和艺术品流线互不交叉,保证艺术品 流线的独立性和安全性;
针对中间层没有气候控制系统,上层需要新的技术系统的情况,替换并增加技术系统;
带着对于建筑的历史文化价值和建筑文化价值的尊重来完成上述的改造。
▼国家博物馆外观

国家博物馆的改造,大部分都是基于原建筑师Friedrich August Stüler的设计。我们的工作则是确保改造设计满足新技术与操作的要求,同时保留建筑的特质。最开始在设计国家博物馆时,是打算做成多功能博物馆的,但是随着时间的推移,逐渐妥协于现实,这个想法不了了之。到二十世纪末期,建筑已经严重损坏,平面布局非常随便。根据国际需求,博物馆需要为艺术品提供更安全稳定的环境和条件,因此改造博物馆成为了当务之急。
▼改造大部分都是基于原建筑师

我们面临的第一个挑战是如何解决流线问题。游客和艺术品都有各自的新的交通流线。博物馆负一层之前里面全是管道和布线,现在通过降低层高来腾出空间布置洗手间和寄存处。互不交叉的两条流线是通过加设了两个新楼梯而实现的。其中一个楼梯装饰风格极具改造特色——使用镀金黄铜,这种材质很符合博物馆温暖柔和的特质。博物馆还有电梯供游客乘坐以及艺术品的运输,最大的电梯可容纳97人。最初建筑师提出在外部增加电梯井,但是考虑到节约和流线,这个提案被否定了。之后我们选择把电梯放在南部中庭处,这是改造时发现的新空间,电梯井加在这里很合理。电梯井看起来是独立的可拆除的一部分,事实上它确实是可拆除的。电梯井被铜制编织条纹的“壳”所包裹。与博物馆厚重的墙不同,这种外壳更轻,且寿命较短,使用这种外壳的想法从博物馆建成之时就有了。电梯井下半部分可以从两侧打开,变成一个大屏幕,这样中庭就可以变成报告厅。
▼中庭的电梯井被铜制编织条纹的“壳”所包裹

▼电梯井立面细部

两个中庭采光都依靠上方的玻璃屋顶,玻璃屋顶很薄,这样就不会影响建筑物的外轮廓。但是拱形屋顶有一点不足之处,即会使声波聚集在空间中心处。玻璃屋顶是由一个个小的锥形结构组成的,这是为了给中庭提供尽可能好的声效。这样的话,声波可以分散至周围的墙壁上,墙壁的吸声灰泥饰面能够吸收声波,地面上的混响就不存在了。如此一来,两个中庭都可以用来举办各种公共活动。墙面的灰色可以让光线更加柔和,这对周围的画廊空间也是有好处的。
▼屋顶结构示意

▼中庭的玻璃屋顶是由一个个小的锥形结构组成的

▼灰色的墙面让光线更加柔和

建筑师将中庭的地面升高了175厘米,以达到两个目的:其一,中庭下方为深入地下的大型设备间预留了空间。其二,将中庭与建筑的其他公共空间结合起来。这些公共空间和博物馆中间被称作教堂的部分联结在一起形成了一个毗连的宏伟空间。为此,教堂的地面降低了44厘米,1961年地面升高89厘米时被压缩的教堂空间也得以重现。我们还在一些富丽堂皇的空间里增设了餐厅、咖啡厅和酒吧,这些空间之前基本都是艺术品修复室。工作区整体大换位,这样,博物馆地面层可以融入城市生活,成为其中一部分。人们不需花钱买门票,就能在这儿会面,喝咖啡,读书,或者只是静静享受时光。改造后的入口长廊也更方便人们进入——经过改造,入口长廊的室外空间部分已经恢复使用,并且因为长廊的地面和相邻的室内空间的地面齐平,所以每个人都能从主入口经过入口长廊进入博物馆。
▼通往画廊空间的楼梯

长久以来,人们认为日照和室外的景观是不利于艺术品的保存和参观的。但是现在,我们对这二者在游客欣赏、定位和体验艺术中所起到的作用有了更深的了解。我们明白了日照对古画并不像我们之前所想的那么有害——实际上,刚完成的画作对日照是最敏感的。为了在不影响室内气候条件和照明条件的前提下能充分利用大窗户,建筑师用钢架玻璃窗换掉了室内原有的窗户,那些窗户的历史可以追溯到20世纪10年代或者20年代。新安装的窗户和遮光板可以满足复杂的需求,比如安全需求,日照热量需求,景观需求,采光需求以及隔热需求。
▼展厅内部

▼钢架玻璃窗替换了室内原有的窗户

▼空置时的展厅

▼展厅局部视角


▼走廊

▼地下室

▼场地平面图

▼地下平面图

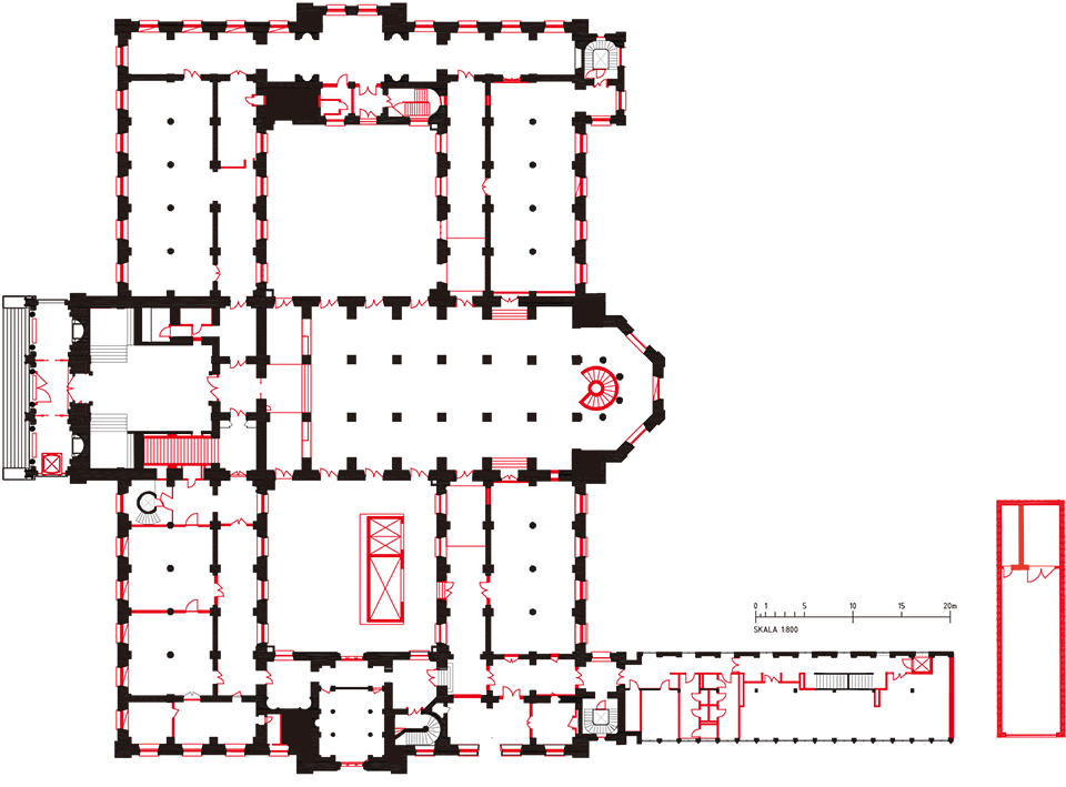
▼首层平面图

▼屋顶平面图

▼剖面图

版权声明:本文版权归原作者所有,如有侵犯您的权益请及时联系,我们将第一时间删除。
投稿邮箱:contact@landscape.cn
项目咨询:18510568018(微信同号)




