南京侵华日军南京大屠杀遇难同胞纪念馆三期扩容工程 | 华南理工大学建筑设计研究院
-
项目名称:侵华日军南京大屠杀遇难同胞纪念馆三期扩容工程
-
项目地点:江苏南京
-
项目规模:28307.39m²
-
设计公司:华南理工大学建筑设计研究院 
-
委托方:南京市建邺区河西建设指挥部办公室
-
建成时间:2015年
-
图片来源:战长恒 马明华
侵华日军南京大屠杀遇难同胞纪念馆三期扩容工程建设为了纪念侵华日军1945年9月9日在南京投降事件,凸显抗战胜利的主题。构思立意为胜利、圆满的情感表达。
▼全景鸟瞰图

延续与个性
纪念是一个城市记忆的延续。“断刀、纪念广场、死亡之庭、祭祀院落、和平公园”。塑造了江东门纪念馆完整的叙事篇章,是南京重要的城市记忆。三期新馆作为纪念馆的扩建工程,不仅补充城市功能、延伸参观流线、凸显不同主题的情感氛围,更是延续了城市纪念。新建部分着重叙述抗战的艰苦历程、表现胜利的喜悦,传递人类对和平圆满的愿景。
▼胜利之墙航拍

和而不同是方案的定位,建筑的整体形态与二期融为一体,也以更加开放包容的姿态、亲切自然的方式融入城市生活。覆土地景式的建筑形态削弱对周边城市建筑和空间的压迫感,柔和的建筑曲线与绿色的树木草地相得益彰、宁静平和。新馆立面延续灰色色调,面对城市空间排列着清水混凝土柱,亦展现了新馆的纪念性特征。
▼灰色调的新馆立面

生态绿色纪念性建筑
扩容工程处处体现绿色设计理念,通过绿色植物屋面、太阳能光伏发电、中水回收利用、透水混凝土选材、下沉庭院及天井、热风压拔风效应等多个生态低碳措施,创造出一个既满足空间艺术气氛又能够体现可持续理念的生态绿色纪念性建筑。
▼体现绿色设计理念

纪念与日常
场地中心是椭圆形的纪念广场,寓意着中国抗战胜利和“圆满”的愿景。整个建筑物呈现谦逊柔和的空间形态,是一个融于城市生活的绿色公园。其中,一条“胜利道路”穿行其中,象征抗战胜利的艰难历程。纪念广场的四周地形微微隆起,形成半围合的空间,结合绿树设置屏蔽了部分城市干扰,保证广场的安静与私密,也为公众提供了一处亲切的放松游憩场地。人们在内可以休憩、奔跑、漫步、交流,怡然自得。
▼场地中心是椭圆形的纪念广场

当需要举办大型纪念活动时,整个椭圆形广场亦可容纳8000人集会。广场的北面设有小型讲演台,供集会活动时候使用。广场三面的抬起斜坡场地,使广场更加具有向心感和聚合性,抬高的坡地下面容纳着商业和展览空间。在广场与坡地交界区域组织着广场主要交通流线,设计了独特的纪念景观要素。300位抗战英烈的名字镌刻于抛光黑色大理石之上,伫立于游人漫步的广场一侧。广场西南侧是与城市对接的重要出入口,设置了下沉广场使纪念广场与城市道路保持了一定的距离感。拱桥的巧妙连接则使得纪念广场的空间具有指向性和聚合性。
▼各种活动



复合与开放
新馆是一个功能复合开放的综合体,除了胜利纪念广场、绿化公园外,还容纳了世界反法西斯战争中国战区胜利纪念馆、大巴车站、社会汽车库、自行车库、商业配套、办公等功能设施。场地西侧北侧通过设置下沉庭院及坡道与地铁、隧道、周边城市空间对接与联系。整体性对周边城市交通进行梳理与更新,有效的完善和补充了纪念馆的参观流线与交通组织,能够为城市提供一个方便可达、开放复合的城市空间节点。开放式的设计是新馆的一个重要特点,当纪念馆及新馆闭馆后,其他功能仍然可以继续提供社会服务。通过灯光照明的设计,使广场在日夜都形成不同的景色,成为一个公共开放的日夜公园。
▼设计理念及与城市生活的融合

空间与材质
和平与圆满愿景,谦逊柔和的形态是这个项目最重要的表达。柔和自然的曲线,绿色开阔的草地使环境安静、轻松,在表达纪念性的同时,也为公众提供了一处亲切与放松的游憩场地。
▼柔和的建筑曲线


在柔和的绿色的衬托下,暗红色的弧形胜利之墙分外醒目。胜利之墙材质采用了能够凸显历史感与沧桑感的暗红色锈蚀钢板。胜利之墙由负一层延伸出来,墙面为三维曲面,通过钢板的分割与嵌入灯槽形成表面肌理,象征着中华民族“浴火重生”的历史记忆,并成为开阔绿色广场日夜的主要景观。胜利之墙的最高点是胜利火炬,火炬在重大活动的时候会点燃熊熊烈火。
▼暗红色锈蚀钢板的胜利之墙突显历史沧桑感

▼二三期过渡联系


胜利之墙后面的坡道是胜利之路,缓缓上升,通过曲面屋檐及坡道的宽窄变化形成峡谷式的空间效果,走到坡道的顶端为巨大悬挑的平台,豁然开朗。在这里人们能够俯瞰胜利广场,象征着胜利之路由“黑暗走向光明”。由胜利之路进入纪念馆,室内一个核心的空间也是贯穿各层的椭圆型的圆台体量,是纪念馆的序厅,主要的上下联系流线围绕着这个体量周围展开。圆台体量顶上一圈椭圆型的天窗,撒下柔和自然光线,增加了馆内静谧的气氛。
▼缓缓上升的胜利之路


▼进入序厅

▼出口

新馆沿街立面均采用一次性浇筑的清水混凝土材质,质朴厚重的清水混凝土既能够凸显建筑的纪念性特征,又符合安静平和的建筑气质。外立面一列列混凝土柱阵将阳光切割成条条光影,形成无穷无尽的韵律感。柱廊下面铺设灰色碎石,自然形成了与城市的缓冲,也加强了建筑的纪念性与场所感。
▼新馆立面均采用一次性浇筑清水混凝土

▼外立面混凝土柱阵形成无穷无尽的韵律感




▼柱廊下面铺设灰色碎石形成了与城市的缓冲

结语
三期扩容工程是侵华日军南京大屠杀遇难同胞纪念馆扩建工程的一个补充和延续,兼具开放性与公共性,日常性与纪念性。这里是一个容纳历史记忆与当前生活、胜利喜悦与死亡悲痛的场所,人们可以在这里纪念、休息、放松、漫步、玩耍。我们希望通过一方公园、一个广场、一条道路的设计带给南京城市、南京市民喜欢的城市公共空间。
▼夜色中的纪念馆

▼总平面图

▼一层平面图

▼屋顶平面图

▼地下平面图

▼剖面图


▼胜利之墙轴测图

▼锈蚀钢板灯槽大样

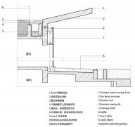
▼墙身大样

▼胜利之墙大样

项目信息
项目名称:侵华日军南京大屠杀遇难同胞纪念馆三期扩容工程
设计时间:2013-2015年
建成时间:2015年
用地面积:28307.39m²
建设面积:54636.3m²
项目地址:江苏南京
业主单位:南京市建邺区河西建设指挥部办公室
设计单位:华南理工大学建筑设计研究院
设计团队:何镜堂、倪阳、刘宇波、包莹、李恺欣、黄艳芳、晏忠、郑炎、钟日明、舒鑫、麦恒、钟敏仪、陆歆、唐雅冰、廖俊峰、张莎玮、梁景韶、黄冠南、盛竞、吴中平、林毅、马辰龙、李晓丰、郑少鹏、何小欣、姜帆、邓夏等
摄 影:战长恒 马明华
版权声明:本文版权归原作者所有,如有侵犯您的权益请及时联系,我们将第一时间删除。
投稿邮箱:contact@landscape.cn
项目咨询:18510568018(微信同号)




