荷兰乌德勒支北部农村休闲住宅建筑设计
admin
2015-10-13
来源:专筑网
-
项目名称:
-
项目地点:乌德勒支
-
设计公司:Zecc Architecten  
-
施工单位:Zecc Architecten
-
图片来源:Stijn, Courtesy of Roel van Norel
这是一个紧凑的休闲房项目,位于乌德勒支北部的农村地区。房屋由木头建造,正面带有百叶窗,敞开朝向绿色花园。
这个设计由 Zecc 建筑事务所和室内设计师Roel van Norel协作实现。Zecc设计了房屋的基本构思,然后Roel van Norel将设计图转变成真实建筑的一个个细节,最终和承包商一起建成了这个房屋。
该房屋已经取代了现有的花园房,地基被重新使用,现有的轮廓作为新房屋的起点。房屋的原型很简单:一个石板瓦三角形屋顶,一个烟囱和一个西部红雪松木制包层。小屋通过这些天然材料的使用与景观融为一体。建筑制图、室内设计和实现都出自一人之手。体现了前所未有的高水平技艺。
小屋的精致之处在于不对称的顶部设计、细节处理和室内设计。房屋一侧通过垂直镶嵌在表面的板条达到完全封闭。另一侧敞开向着绿地,装有活动百叶窗。阳光能直接照射进来,景色也能被尽收眼底。
百叶窗的水平板条延续到小屋的包层,以便百叶窗关闭时将整个房屋封闭起来。正面完全透明,有一个坚固的钢材外立面。这部分着眼于景观的开放部分。
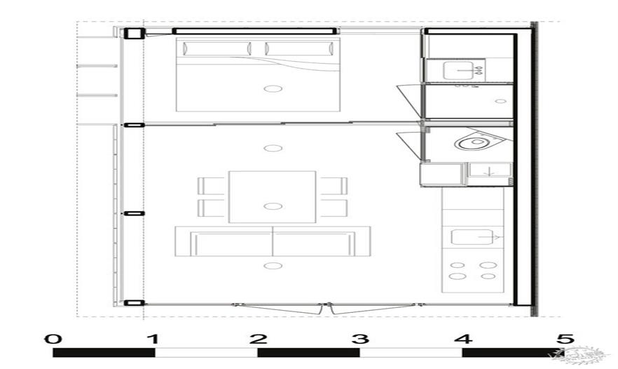
建筑由四梁一橼构成。西侧表面全用玻璃,其框架位于椽上,设计细致,完全看不出来。正面部分用作厨房、起居室、餐厅,卧室位于后面区域。空间能够用滑动板隔开。在卧室区正上方是个夹层。封闭面所有设施都集中到一面橡木墙里:厨房、木制火炉、马桶、淋浴、水槽和几个柜子。甚至厨房的底座也设计成抽屉式。房屋每一寸经过仔细考虑后,都得到了充分利用。
这个设计由 Zecc 建筑事务所和室内设计师Roel van Norel协作实现。Zecc设计了房屋的基本构思,然后Roel van Norel将设计图转变成真实建筑的一个个细节,最终和承包商一起建成了这个房屋。
该房屋已经取代了现有的花园房,地基被重新使用,现有的轮廓作为新房屋的起点。房屋的原型很简单:一个石板瓦三角形屋顶,一个烟囱和一个西部红雪松木制包层。小屋通过这些天然材料的使用与景观融为一体。建筑制图、室内设计和实现都出自一人之手。体现了前所未有的高水平技艺。
小屋的精致之处在于不对称的顶部设计、细节处理和室内设计。房屋一侧通过垂直镶嵌在表面的板条达到完全封闭。另一侧敞开向着绿地,装有活动百叶窗。阳光能直接照射进来,景色也能被尽收眼底。
百叶窗的水平板条延续到小屋的包层,以便百叶窗关闭时将整个房屋封闭起来。正面完全透明,有一个坚固的钢材外立面。这部分着眼于景观的开放部分。
建筑由四梁一橼构成。西侧表面全用玻璃,其框架位于椽上,设计细致,完全看不出来。正面部分用作厨房、起居室、餐厅,卧室位于后面区域。空间能够用滑动板隔开。在卧室区正上方是个夹层。封闭面所有设施都集中到一面橡木墙里:厨房、木制火炉、马桶、淋浴、水槽和几个柜子。甚至厨房的底座也设计成抽屉式。房屋每一寸经过仔细考虑后,都得到了充分利用。
发表评论
您好,登录后才可以评论哦!




