镜面房屋建筑设计
admin
2015-10-14
来源:优尔城
-
项目名称:
-
项目地点:
最初的这里,是公证处的办公室,与周围环境用一种非常特别的方式进行着互动,直到五年前才投入使用。
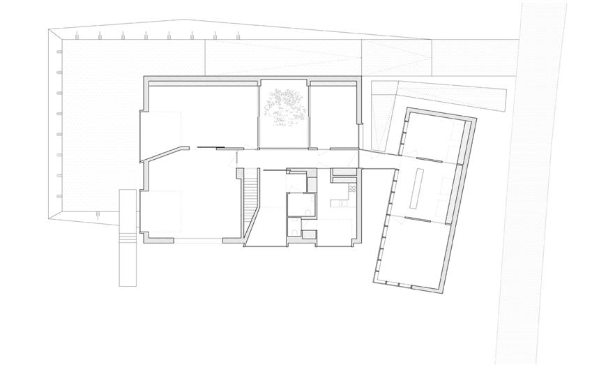
因此,对于这里的改建是一个巨大的考研。构思出来的设计不能是一种延续或复制,所以需要采用一个完全不同的方法。在六个月的设计期间,一个抽象的镜盒加上黑色底座及玫瑰,沿着街道的摆放,成了最后的设计。这样的设计取代前者之间的建筑的入口通道。扩展不仅是建筑本体上,而且还体现在视觉上与现有的办公室的关联。用白线缝边的窗户,就像处在原来的建筑一般,但却创建了一种截然不同主要设计概念。该建筑的本质简单而重复,采用了俄勒冈州松与固体砖作主要材料。但强大的反射表面抢走了所有材料的眼球。精致的细节反射了周围的宁静,同时融入周围的景观。镜像也同时衬出了周围的树木和斜坡。不锈钢包覆的外立面就如同液体一般,相当灵动。这种疏远的效应还确保了原本建筑将得以保全。
因此,对于这里的改建是一个巨大的考研。构思出来的设计不能是一种延续或复制,所以需要采用一个完全不同的方法。在六个月的设计期间,一个抽象的镜盒加上黑色底座及玫瑰,沿着街道的摆放,成了最后的设计。这样的设计取代前者之间的建筑的入口通道。扩展不仅是建筑本体上,而且还体现在视觉上与现有的办公室的关联。用白线缝边的窗户,就像处在原来的建筑一般,但却创建了一种截然不同主要设计概念。该建筑的本质简单而重复,采用了俄勒冈州松与固体砖作主要材料。但强大的反射表面抢走了所有材料的眼球。精致的细节反射了周围的宁静,同时融入周围的景观。镜像也同时衬出了周围的树木和斜坡。不锈钢包覆的外立面就如同液体一般,相当灵动。这种疏远的效应还确保了原本建筑将得以保全。
发表评论
您好,登录后才可以评论哦!



