以色列耐候钢结构住宅建筑设计
admin
2015-12-14
来源:archdaily
-
项目名称:
-
项目地点:特拉维夫—雅法
-
项目规模:580.0 sqm
-
设计公司:
-
施工单位:Pitsou Kedem Architects
-
图片来源:Amit Geron
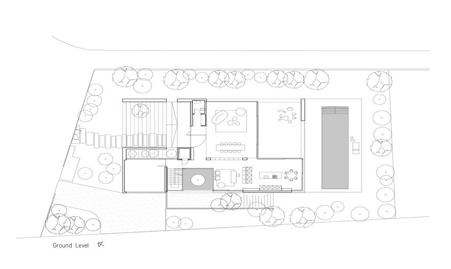
在该项目中,建筑的主要结构和空间结合在一起,形成穿孔的耐候钢结构,为房屋创设了清晰的界限。这个结构调节穿透建筑空间的阳光量,控制进入建筑和从建筑内部向外看的视角,同时在室内外之间创造了可控的视觉交流。
该结构的建造用于图层面板和和区域中。中心区即中央场地,居住区以双重公共生活空间为中心,在外部的区域中,耐候钢结构为建筑确定了边界和区域,同时创造了连接别墅内外部空间的新的中间区域。
该建筑的外部区域,耐候钢层从远处看象是二维的结构,实际上这个结构几乎能作为一件雕塑或艺术品来感受,而不仅具有作为建筑结构一部分的功能。相同结构创造了该建筑最重要的元素 —— 影子层,它没有物理外观,不占体积和空间。墙上和地板的投影来自早期规划中对建筑外部结构的设计,它与阳光照在地面的角度有关。这个早期规划允许建筑师创建区域,并完成表面作为影子涂画的画布。建筑由裸露的混凝土墙建成,广阔的墙壁毫无生机,要是没有这个光影效果的话,整个建筑看起来就像是一座修道院。移动的阴影越过建筑表面,创造了动态的戏剧性效果,让整个建筑充满了活跃的动感。有时阴影创造重复的几何形状,这些形状有时沿着整个墙面拉伸,有时在墙上创造色彩和深度的独特融合体。
结构上的光影增强了用户在空间上的体验,给空间提供了丰富的结构、运动感和一定的神秘感。所选建材如混凝土、耐候钢和木材都处于原始状态,阳光随着每天不同的时间变幻着材料的色彩。耐候钢在白天呈现明亮的橙色,傍晚看起来几乎是黑色的。
阳光是当地气候最丰富的可利用资源,对阳光的利用允许设计师在该项目里创造出一个对比和悬念的世界:在主体和亮度之间,在安静和动态之间,在简单和复杂之间,在光明和黑暗之间,在神秘和已知之间。不论从建筑师的视角还是从建筑空间和居住者之间的关系,它们一起丰富了这个结构。一个寂静的仙人掌花园增强了干燥的空气和安静的氛围,只有仙人掌在混凝土墙面和天花板上的投影给花园带来了生机,并且作为整个项目的象征。
该结构的建造用于图层面板和和区域中。中心区即中央场地,居住区以双重公共生活空间为中心,在外部的区域中,耐候钢结构为建筑确定了边界和区域,同时创造了连接别墅内外部空间的新的中间区域。
该建筑的外部区域,耐候钢层从远处看象是二维的结构,实际上这个结构几乎能作为一件雕塑或艺术品来感受,而不仅具有作为建筑结构一部分的功能。相同结构创造了该建筑最重要的元素 —— 影子层,它没有物理外观,不占体积和空间。墙上和地板的投影来自早期规划中对建筑外部结构的设计,它与阳光照在地面的角度有关。这个早期规划允许建筑师创建区域,并完成表面作为影子涂画的画布。建筑由裸露的混凝土墙建成,广阔的墙壁毫无生机,要是没有这个光影效果的话,整个建筑看起来就像是一座修道院。移动的阴影越过建筑表面,创造了动态的戏剧性效果,让整个建筑充满了活跃的动感。有时阴影创造重复的几何形状,这些形状有时沿着整个墙面拉伸,有时在墙上创造色彩和深度的独特融合体。
结构上的光影增强了用户在空间上的体验,给空间提供了丰富的结构、运动感和一定的神秘感。所选建材如混凝土、耐候钢和木材都处于原始状态,阳光随着每天不同的时间变幻着材料的色彩。耐候钢在白天呈现明亮的橙色,傍晚看起来几乎是黑色的。
阳光是当地气候最丰富的可利用资源,对阳光的利用允许设计师在该项目里创造出一个对比和悬念的世界:在主体和亮度之间,在安静和动态之间,在简单和复杂之间,在光明和黑暗之间,在神秘和已知之间。不论从建筑师的视角还是从建筑空间和居住者之间的关系,它们一起丰富了这个结构。一个寂静的仙人掌花园增强了干燥的空气和安静的氛围,只有仙人掌在混凝土墙面和天花板上的投影给花园带来了生机,并且作为整个项目的象征。
发表评论
您好,登录后才可以评论哦!




