谢菲尔德大学钻石教学楼建筑设计
admin
2015-12-28
来源:ArchDaily
-
项目名称:
-
项目地点:南约克郡,谢菲尔德,Leavygreave路 32号,信息共享空间
-
项目规模:19500.0 sqm
-
图片来源:Jack Hobhouse
这个具有开创性的谢菲尔德大学钻石大楼项目现在已经竣工,该大楼将会为谢菲尔德大学在扩大其工学院以及学生和学者进入世界先进行列方面做出重大贡献。
该大楼由 Twelve Architects建筑事务所设计,并由 Balfour Beatty巴尔弗·贝蒂负责建设,——建筑在完成了它的外表以后被名为钻石。建筑占地19500平方米,设置有专业工程实验室,阶梯教室,大规模灵活的教学空间,车间,学习资源中心和集成起来的正式和非正式的学习环境。学校共有5000名学生。同时还为众多大学工程专业的本科生提供了一个家,钻石大楼也为一系列其他部门提供各种设施,在统一环境下促进跨学科工作协作,以满足21世纪的研究和实践活动。
项目总投资8100万英镑,这是有史以来大学最大的资本投资,简单来说该建筑将会帮助其成为英国领先的工程大学,并具有双倍于2021年工学院的大小。随着学校的申请学生以每年25%的比例增长,客户团队相信,钻石大楼将会继续扮演重要角色,吸引世界一流的学者和最好的学生。
钻石大楼的外观是独特的。它采用了电镀铝和玻璃幕墙外观,其灵感来自于周围历史建筑的细节,特别是靠近教堂的窗户,采用了石头窗框装饰。它还引用一个“多孔自动机”,这是一种在工程领域研究的离散模式,大学用它来描述钢在处理过程中的显微组织变化。
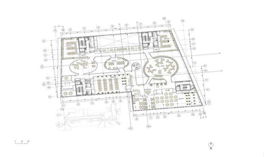
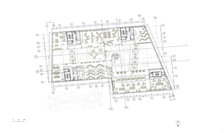
建筑的理念就是要全方位的支持工程学科的所有内容,从基础科学到专业实践。建筑师在底层平面和中央大厅设计了一条公共线路,让人们能够很好地观看到各种工程研究活动的现场展示。
在自然通风的大厅里,设置了很多弧形的“豆荚”式的空间,专为非正式的个人和小组学习使用。教室、实验室和办公室排列在北面和南面的中庭里,那里有全高玻璃门面,具有最好的视野空间,其教学空间显示出了其最好的工程教育和研发团队。室内光线来自于屋顶照射进来的日光,专门为一层中庭设计的玻璃课桌让自然光线能够穿透底层照到地下室层面,并且还能创建声分离。一系列阶梯教室位于地下一层,一共有1500个座位,其中最大的一个拥有400个座位。
该大楼由 Twelve Architects建筑事务所设计,并由 Balfour Beatty巴尔弗·贝蒂负责建设,——建筑在完成了它的外表以后被名为钻石。建筑占地19500平方米,设置有专业工程实验室,阶梯教室,大规模灵活的教学空间,车间,学习资源中心和集成起来的正式和非正式的学习环境。学校共有5000名学生。同时还为众多大学工程专业的本科生提供了一个家,钻石大楼也为一系列其他部门提供各种设施,在统一环境下促进跨学科工作协作,以满足21世纪的研究和实践活动。
项目总投资8100万英镑,这是有史以来大学最大的资本投资,简单来说该建筑将会帮助其成为英国领先的工程大学,并具有双倍于2021年工学院的大小。随着学校的申请学生以每年25%的比例增长,客户团队相信,钻石大楼将会继续扮演重要角色,吸引世界一流的学者和最好的学生。
钻石大楼的外观是独特的。它采用了电镀铝和玻璃幕墙外观,其灵感来自于周围历史建筑的细节,特别是靠近教堂的窗户,采用了石头窗框装饰。它还引用一个“多孔自动机”,这是一种在工程领域研究的离散模式,大学用它来描述钢在处理过程中的显微组织变化。
建筑的理念就是要全方位的支持工程学科的所有内容,从基础科学到专业实践。建筑师在底层平面和中央大厅设计了一条公共线路,让人们能够很好地观看到各种工程研究活动的现场展示。
在自然通风的大厅里,设置了很多弧形的“豆荚”式的空间,专为非正式的个人和小组学习使用。教室、实验室和办公室排列在北面和南面的中庭里,那里有全高玻璃门面,具有最好的视野空间,其教学空间显示出了其最好的工程教育和研发团队。室内光线来自于屋顶照射进来的日光,专门为一层中庭设计的玻璃课桌让自然光线能够穿透底层照到地下室层面,并且还能创建声分离。一系列阶梯教室位于地下一层,一共有1500个座位,其中最大的一个拥有400个座位。
发表评论
您好,登录后才可以评论哦!




