西班牙萨瓦德尔906学校翻新改造设计
admin
2015-12-29
来源:ArchDaily
-
项目名称:
-
项目地点:Sabadell, Barcelona, España
-
图片来源:Adrià Goula
学校位于萨瓦德尔城市中心,是一个由两栋与街道对齐的建筑围合的地块。两个体块创建出一个宽阔的庭院,还有一个位于地下室的体育中心。翻新项目只涉及包含了学前教室和一些室外空间的最古老的建筑(1959年建)。
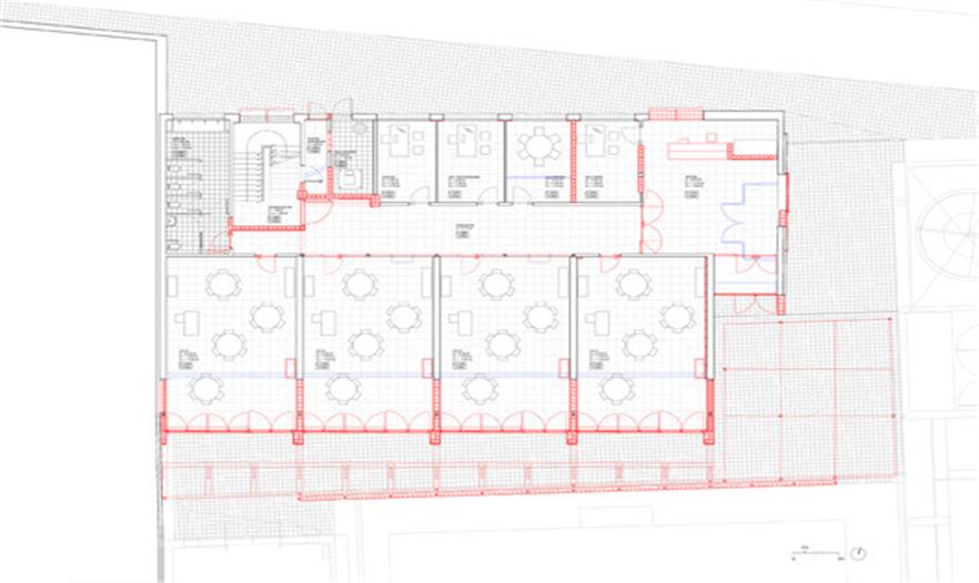
设计的基本策略是发挥原建筑的巨大潜力,以及构建表面和一些有用的空间。主要的翻新改造是一个完整的室内翻新和原有的1200平方米的建筑添加的一个240平方米的小空间,给予建筑一个新的南立面。设计还包括两个新的游乐场:一个在建筑屋顶上,而另一个位于体育中心入口的屋顶之上。最后是给街道的主要通道添加一个新的门廊。
原来的建筑没有遗产价值,但它作为现有基础设施材料具有一定的物质价值。它还有一个双面的情感意义。它的“魅力”与学校建筑最古老的的一部分相匹配,而建筑的“氛围”是由于铜绿在时间流逝下的表现所营造(下陷的砌体墙,隐蔽的陶瓷拱顶和混凝土梁的天花板等等)。 让我们感兴趣的是将原始材料作为一种有灵魂的建筑元素。室内和原来的街道立面翻新改造的主要目的是加强新旧建筑之间的紧张关系。
这个项目是最昂贵的翻新改造,这本来在竞赛规则(2.009)是不希望被看到的,但这也是让我们赢得竞赛的原因,是建筑的拓展使得现有沿街的的教室缺乏合理的面积。矛盾的是扩展出现在室内的立面,很显然建筑不可能从155米延长到18 5米深。
在一楼,扩展保留了在原地现有的走廊,而幼儿园教室扩展到院子边,从35平方米拓展到到50平方米。另一方面,在第一和第二层楼,走廊移动至中央承重墙对面,这样所有临街的的教室可以进行扩展。这种变化给这个地方带来一个最强大而独特的材料:新的连廊开口穿过一堵30厘米厚的墙,将原来的教室分隔开。建筑的扩展是由金属(疟原虫)结构组成的。它是由原本存在的立面的金属支柱支撑,建于70年代一次轻微的扩展,新的支柱位于庭院的边缘,由地下室的挡土墙所支撑。
南立面一直有一些日照问题,这也是教室舒适感不足的一个因素。 翻新改造是基于一个由固定金属和穿孔水平板条组成被动的系统,以调节进入室内的阳光。它们只允许20%的日光集中到冬天,同时确保教室有良好的通风。它包含在一个80厘米厚的立面,中间是50厘米的气室用于永久通风,充当一个热缓冲以及每个窗户外部的框架,孩子们能够体验种植和学习园艺。 抗金属板条百叶窗足以承担来自学校操场的普通球的冲击。它们由每隔两米的厚道格拉斯松木压条所支撑——一种户外的耐抗树种。他们形成了一个垂直的立面,平衡了立面与其他现存室内立面的构图。
北立面的翻新改造(原先是隔离的)——很小但却是必要的。我们保留现有砌筑方式以及现有的立面构成。与室内天花板的拱券一起成为原始建筑的最后痕迹。白色的木制品——既不是美的也不是原始的但保存完好。由于内部功能需求,我们提出了具体的解决方案,提高与原来的外观的对比关系。六个新的窗户提高南立面与其他由暴露的混凝土砌块组成的元素如(楼梯,砖…)的交叉通风。
新的户外空间
一半的南屋顶之前是不可以到达的,现在转换成一个新的户外操场,有着美丽的风景。翻新包含在一个附加的平面,位于完全保留的楼梯和一个钢筋混凝土板上。另一个新的庭院在体育中心楼梯下面,是为小孩子而设的。楼梯上的天窗有250平方米是用金属表皮覆盖的,由现有的梁所支撑。电梯的40平方米的混凝土屋顶——也成为一个基于沙地和看台之上的操场,孩子们可以在这里玩耍。
最后,进入建筑的空间也是经过重新考虑的:一些门是封起来的,而一些新的是经过设计的。主入口的门廊经过扩展,形成一个更高的新空间,以便可以成为一个新的节点。它也像一个枢纽,连接建筑的四个主要部分:中学建筑,中央庭院,地下室的体育中心,幼儿园和小学。
设计的基本策略是发挥原建筑的巨大潜力,以及构建表面和一些有用的空间。主要的翻新改造是一个完整的室内翻新和原有的1200平方米的建筑添加的一个240平方米的小空间,给予建筑一个新的南立面。设计还包括两个新的游乐场:一个在建筑屋顶上,而另一个位于体育中心入口的屋顶之上。最后是给街道的主要通道添加一个新的门廊。
原来的建筑没有遗产价值,但它作为现有基础设施材料具有一定的物质价值。它还有一个双面的情感意义。它的“魅力”与学校建筑最古老的的一部分相匹配,而建筑的“氛围”是由于铜绿在时间流逝下的表现所营造(下陷的砌体墙,隐蔽的陶瓷拱顶和混凝土梁的天花板等等)。 让我们感兴趣的是将原始材料作为一种有灵魂的建筑元素。室内和原来的街道立面翻新改造的主要目的是加强新旧建筑之间的紧张关系。
这个项目是最昂贵的翻新改造,这本来在竞赛规则(2.009)是不希望被看到的,但这也是让我们赢得竞赛的原因,是建筑的拓展使得现有沿街的的教室缺乏合理的面积。矛盾的是扩展出现在室内的立面,很显然建筑不可能从155米延长到18 5米深。
在一楼,扩展保留了在原地现有的走廊,而幼儿园教室扩展到院子边,从35平方米拓展到到50平方米。另一方面,在第一和第二层楼,走廊移动至中央承重墙对面,这样所有临街的的教室可以进行扩展。这种变化给这个地方带来一个最强大而独特的材料:新的连廊开口穿过一堵30厘米厚的墙,将原来的教室分隔开。建筑的扩展是由金属(疟原虫)结构组成的。它是由原本存在的立面的金属支柱支撑,建于70年代一次轻微的扩展,新的支柱位于庭院的边缘,由地下室的挡土墙所支撑。
南立面一直有一些日照问题,这也是教室舒适感不足的一个因素。 翻新改造是基于一个由固定金属和穿孔水平板条组成被动的系统,以调节进入室内的阳光。它们只允许20%的日光集中到冬天,同时确保教室有良好的通风。它包含在一个80厘米厚的立面,中间是50厘米的气室用于永久通风,充当一个热缓冲以及每个窗户外部的框架,孩子们能够体验种植和学习园艺。 抗金属板条百叶窗足以承担来自学校操场的普通球的冲击。它们由每隔两米的厚道格拉斯松木压条所支撑——一种户外的耐抗树种。他们形成了一个垂直的立面,平衡了立面与其他现存室内立面的构图。
北立面的翻新改造(原先是隔离的)——很小但却是必要的。我们保留现有砌筑方式以及现有的立面构成。与室内天花板的拱券一起成为原始建筑的最后痕迹。白色的木制品——既不是美的也不是原始的但保存完好。由于内部功能需求,我们提出了具体的解决方案,提高与原来的外观的对比关系。六个新的窗户提高南立面与其他由暴露的混凝土砌块组成的元素如(楼梯,砖…)的交叉通风。
新的户外空间
一半的南屋顶之前是不可以到达的,现在转换成一个新的户外操场,有着美丽的风景。翻新包含在一个附加的平面,位于完全保留的楼梯和一个钢筋混凝土板上。另一个新的庭院在体育中心楼梯下面,是为小孩子而设的。楼梯上的天窗有250平方米是用金属表皮覆盖的,由现有的梁所支撑。电梯的40平方米的混凝土屋顶——也成为一个基于沙地和看台之上的操场,孩子们可以在这里玩耍。
最后,进入建筑的空间也是经过重新考虑的:一些门是封起来的,而一些新的是经过设计的。主入口的门廊经过扩展,形成一个更高的新空间,以便可以成为一个新的节点。它也像一个枢纽,连接建筑的四个主要部分:中学建筑,中央庭院,地下室的体育中心,幼儿园和小学。
发表评论
您好,登录后才可以评论哦!



