江苏无锡旧纺织厂改造而成的艺术与购物中心设计
admin
2016-03-14
来源:互联网|
-
项目名称:
-
项目地点:
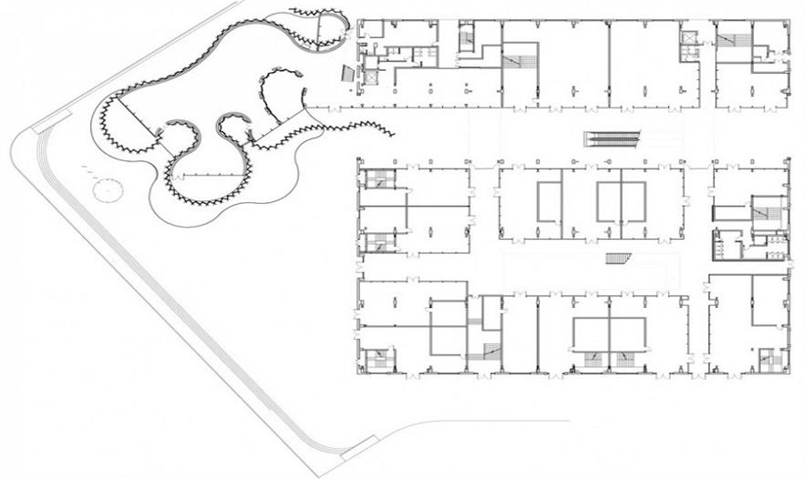
隈研吾将无锡的一个旧纺织厂改造成为了艺术与购物中心。这栋可以追溯到二十世纪六十年代的红砖建筑,已经被完全翻新,一个雕塑状的扩建体块成为这个场地的标志。对该扩建部分的外形设计,建筑师参照了当地具有重要意义的太湖石文化。
艺术馆四周环绕着浅水池,勾勒出了建筑的入口并且提供了建筑与环境之间的联系。建筑包裹着一层铝铸板,就像是阳光的筛子一般,使阳光柔和地照进玻璃展厅里。扩建建筑是一个变形虫似的形状,与旧纺织厂砌砖结构相连接。改造的部分在一些列的零售店和办公室旁还进一步提供了展览空间。
隈研吾设计的长椅和其他家具遍布在建筑的每个区域,产生了一个统一和谐的视觉美感。在这个超过10000平方米的场地上,这个新建筑成为了场地上工业化的过去和文化发展的未来的一个纽带。
艺术馆四周环绕着浅水池,勾勒出了建筑的入口并且提供了建筑与环境之间的联系。建筑包裹着一层铝铸板,就像是阳光的筛子一般,使阳光柔和地照进玻璃展厅里。扩建建筑是一个变形虫似的形状,与旧纺织厂砌砖结构相连接。改造的部分在一些列的零售店和办公室旁还进一步提供了展览空间。
隈研吾设计的长椅和其他家具遍布在建筑的每个区域,产生了一个统一和谐的视觉美感。在这个超过10000平方米的场地上,这个新建筑成为了场地上工业化的过去和文化发展的未来的一个纽带。
发表评论
您好,登录后才可以评论哦!



