深圳猫树里咖啡厅建筑设计
-
项目名称:
-
项目地点:深圳市南山区南海大道3676号
-
项目规模:380.0 平方米
-
设计公司:间外建筑工作室 
-
施工单位:间外建筑工作室
-
图片来源:白羽
这是工作室在深圳大学小西门完成的两个项目之一, 既是来自同一个业主, 两个项目既是邻居,也是第一次在城市的建筑实践。深圳大学位于深圳的南山区, 小西门朝南海大道,对面是桂庙村, 这里是大学门外最繁华的片区, 各种咖啡厅和餐厅密集的地方, 和学校幽静的环境有着很大的反差。
业主是深大的客座老师, 从事广告行业, 公司一直扎根在小西门的园区, 后来搬到园区的一楼时, 我们为他改造了600平米的办公室, 同时间他也计划在办公室对面开一个咖啡厅。 咖啡厅的原址是一处烧烤店, 是晚上学生的热点。业主希望这是一个创客文化的咖啡厅, 创业者可以来讨论, 分享他们的项目, 也可以在这找到投资者. 深圳作为年轻的设计之都和创业者的乐园, 这种空间的需求很大。
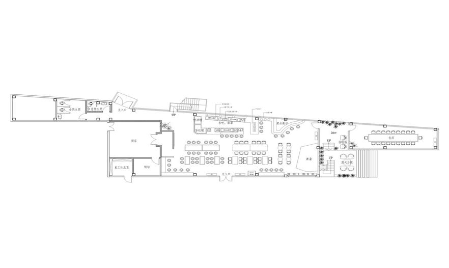
基地面积约500平方米,由于形状细长, 咖啡厅在规划功能上有一些限制, 我们把功能分为三个区: 交流,用餐和配套区。交流区是一个独立玻璃房带院子和露天小剧院, 在这里可以容纳不同人群的活动。 用餐区是一个开放区, 以中间的吧台为主体, 配合不同高度层次的书架。咖啡厅建筑是一层的钢结构房子,加上铸铁框的落地玻璃,自流平的地面和水曲柳的家具配搭 , 一是由内融入基地优美的环境但同时有家的温馨感觉, 二是从外减少建筑的重量感和存在感, 期待来这里的人感觉自己处在一个亭子或院子之中喝咖啡, 或发呆, 享受在校园中的一种独处时光。



