泰国雷丘特学校建筑设计
-
项目名称:泰国雷丘特学校
-
项目地点:泰国
-
项目规模:1100平方米
-
设计公司:Design in Motion 
-
建成时间:2016年
-
图片来源:Ketsiree Wongwan
本次项目设计充分反映了“蒙台梭利(意大利女医师及教育家)”式的理想学习环境,让整个学习空间更像一个大家庭而非传统意义上的规矩教室。因此,学习区域被划分成许多个小尺度的“房间”,让所有孩子在上学的时候都能更有家的感觉。这些“房间”的布局形式与设计与每个孩子的活动息息相关。


最适合这个年龄段孩子的学习环境是能够释放他们天性的地方,这就是为什么本次建筑的布局要想方设法地促进和激发孩子的自我学习能力。功能排布与室内外空间、建筑形式以及景观设计相结合,以适应各种不同的学习活动。这种布局由不同的“自然”元素组成,每个元素适合儿童发展的不同阶段。在这个项目中,有建筑师筛选的用于创建理想学习环境的自然元素,如洞穴、沙丘、土坡和树木。



1.“洞穴”的概念被转化成入口处层叠铺设的木板元素。木板与木板之间的空隙能够让自然光线自由穿过,让整个入口空间醒目而有趣,为孩子们营造一个温和清新的气氛。
2.“沙丘”主要设置在幼儿园建筑周围的操场上,以促进幼儿触觉的发育。
3. 自由形式的“土坡”设置于庭院和周边区域的景观中,孩子们可以在这里跑来跑去,利用该空间进行户外学习。这部分区域同时也用来连接所有的建筑和学习空间。
4.“树木”的种植可以为户外学习空间提供阴凉。




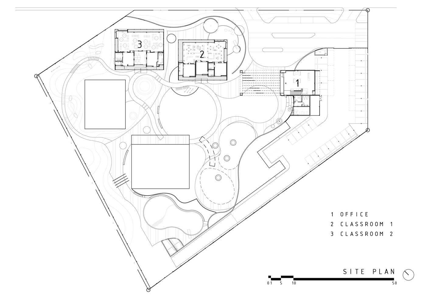
该学校中还包括一个家长楼和两座教学建筑,其中建筑之间通过带有屋顶的外部走廊相连接。所有的建筑都是灰色色调的块面和木板或木格栅穿插完成的,从外面看,给人一种连续而温暖的感觉。建筑形式尽可能地干净简洁,可以让孩子们更容易理解学校的布局。此外,木格栅有助于过滤从外部照射过来的阳光,在达到最佳视觉环境以及学习氛围的同时还能让儿童接触到足够的阳光。


另外,这样的格栅会对孩子们的视野形成一定的阻隔,有助于减少教室外让他们分心的事物,帮助孩子更好地专注于他们当前的任务。教学建筑内设置有多个较小面积的房间,为不同的活动提供空间。整个学校的设计理念受到了“儿童之家”的启发,每个房间里都可以玩耍,学习和开发不同的技能和知识。也就是说小尺度的房间比常规的大面积开敞式活动房更适合孩子们,更有助于激发他们的天性。




图纸

总平面图

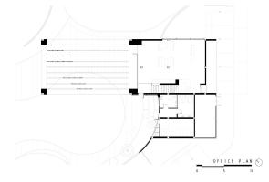
办公平面图

教室1平面图

教室2平面图

立面图

剖面图

“概念”、“场地”以及“教室”分析图




