台北“光之雨”青创共享办公室室内设计
天空超人
2018-07-02
来源:archcollege
-
项目名称:台北“光之雨”青创共享办公室
-
项目地点:台北市长春路
-
项目规模:130m²
-
设计公司:行一建筑 • 彭文苑建筑师事务所 
-
委托方:FutureWard 未來產房
-
建成时间:2017
-
图片来源:彭文苑,李明修
本空间是一间青创共享办公室FutureWard位于地下室的一处多功能交谊与办公空间。是一处能因应需求而弹性调整使用的场所,可以办公,休憩,讨论,分享,授课与活动。

白色的板片,在空间中蜿蜒跃动形成空间的皮层,是天花,是墙面,也是柜体。它穿梭在暖色的夹板墙体之间界定出不同的使用空间,高低与层次。不同的空间在漫射柔和的光线中融合为一。

空间中唯一的阳光来自上方的天窗,透过白色律动的板墙从天花延伸形成墙面,过滤着由户外进入室内的阳光,同时界定出空间的层次。白色格板能隔绝阳光形成律动的阴影,能反射阳光创造出跃动的光影,或是漫延阳光营造出柔和的光域。

随着时间与阳光的变化与强弱,让这个空间中有如下着一场“光之雨”,如雨般洒落的光线,激发出无数的创意火花。提供使用者一个能随着天窗外阴晴一起呼吸的工作环境,而光线就像是“灵感的原点”,提供人们源源不断的新意!

一处启发,想象与光的殿堂














空间改造前
图纸

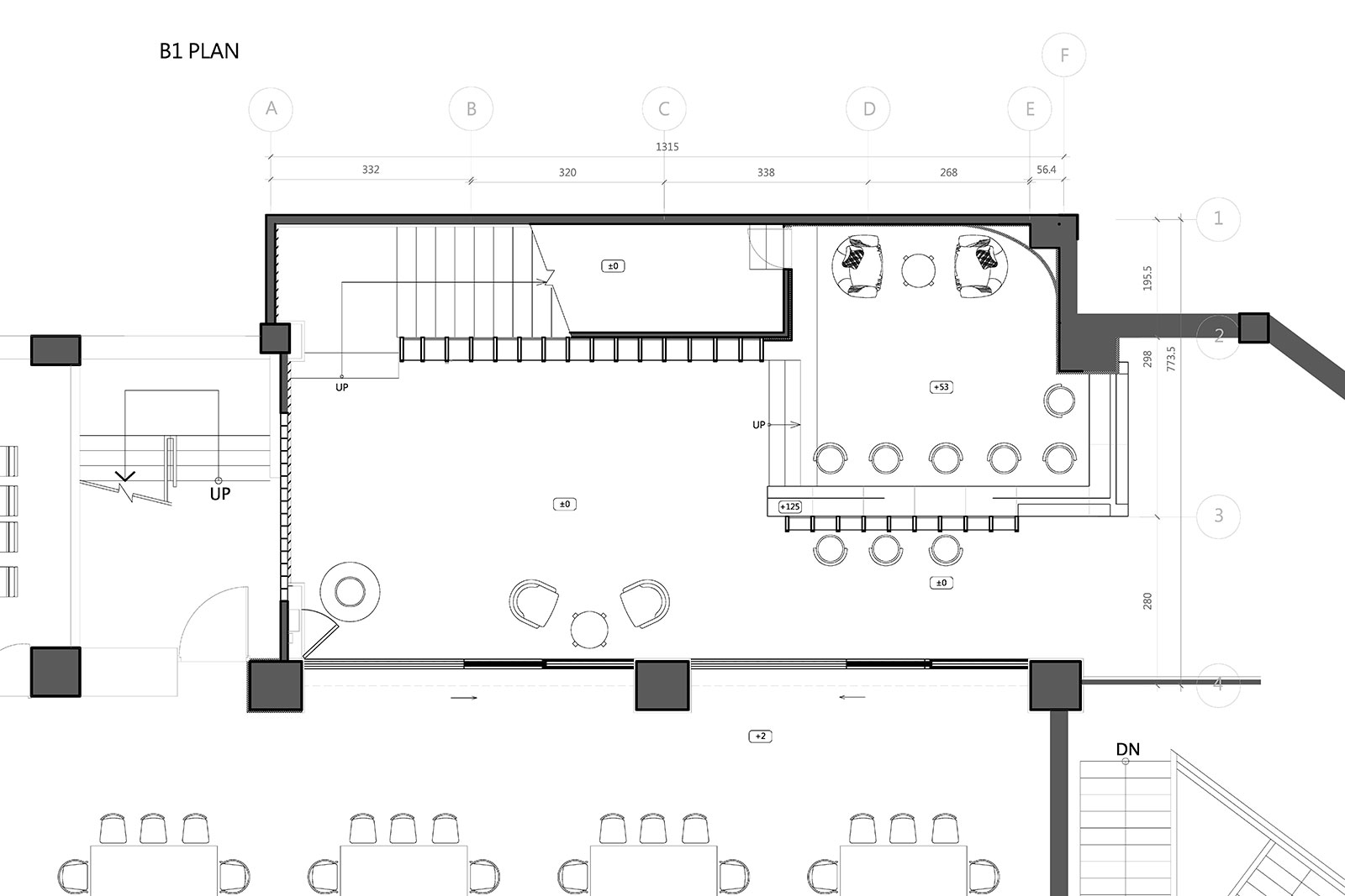
一层平面图

夹层平面图

空间透视

轴测爆炸图

模型
发表评论
您好,登录后才可以评论哦!




