承德凤凰谷山顶艺术馆建筑设计 | dEEP Architects
-
项目名称:承德凤凰谷山顶艺术馆
-
项目地点:承德
-
项目规模:2600.0 平方米
-
设计公司:dEEP Architects 
-
委托方:天缘兆业投资集团
-
建成时间:2018
-
图片来源:曹百强 / ZERO


凤凰谷山顶艺术馆位于北京和承德交界处的燕山山脉之上,远眺金山岭长城。建筑占地面积1500㎡,建筑室内面积2600㎡。除作为美术馆展示艺术作品及相关文化活动之外,也承担凤凰谷整体开发项目的接待与展示功能。

凤凰谷山顶艺术馆在形态上寄托了我们对中国古典精神的思考和延展。我们注重“势”这一概念。势是古人对客观事物的一种感性而抽象的理解方式,涵盖了事物在时间和空间上的演进。用建筑的形态去继承和演绎“势”,依山就势,顺势而为,如此产生出一个与群山相得益彰的形体,反映了周遭连绵的山势和自然形态,与之融为一体。


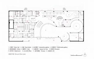
由微微抬起的入口进入艺术馆,首层为开放的展览区域,视线通透,南北均可观远山美景、近处的松柏,自然始终相随。随着屋顶下沉的曲线,你会不由得关注到位于底层的高挑空间。沿一条环状大阶梯拾级而下连接着两层主要的艺术展台,三层通高的空间组成了大尺度艺术品展览需要的大厅。


底层的东侧,已深入山体,则是不需要采光的多媒体互动空间及影音厅。在底层的北侧区域,可观近出松林和远山,便是艺术馆的咖啡厅,并有室外的平台可供观景。除了电梯,此处还有个贯穿整个建筑的旋转楼梯,可直接到达顶层。顶层作为VIP客人的接待空间,包括茶室,休息,餐厅等区域,根据功能需求,空间尺度变化丰富。

南侧面向长城的区域是宴会区,有更高尺度的空间及通透的玻璃幕,开放的料理台也为与客人的互动提供可能。


西侧有一个混凝土的方盒子,作为连接室内外的入口,可通过屋顶栈道直接到达山顶,或翻越屋顶,到达建筑东侧的室外平台,将整个顶层的空间室内外联通起来。

这里栈道通过屋顶的起伏与自然山地联系起来,模糊自然与人工的界限,同时也象征性地呼应了与建筑遥望的金山岭古长城蜿蜒于山的形态及狭长的空间特色。成为一个很重要的空间载体,连接内与外,现代与未来。

屋顶形态的设计不仅仅是基于美学上的考虑,同样也是经过了一系列的雨水分析模拟与风洞试验,并在力学数字模型和实体模型上推敲优化的结果。数字技术同样被应用于施工的每一个阶段:例如建筑主体17根复杂的曲线钢梁得以精确加工和组装,保持屋面形态;大量异形建筑组件的精确加工和安装也成为可能。在现代化的钢材和玻璃之外,更多富有传统气息材料的应用,如竹材、木材,以及传统烧制的陶瓦,将建筑的整体氛围与中国古典精神联系起来。

与山水相连,与自然相融合,延续范山模水的中国古典精神,并以现代的建造技术使之成为现实,为现代人生活所用。山顶艺术馆的设计与建造,是我们在寻找数字建筑在中国本土语境下的呈现方式的又一次富有意义的探索。

版权声明:本文由作者于江南电竞官网登录入口
网发布,如转载、链接、转贴或以其它方式使用本稿,需注明“文章来源:江南电竞官网登录入口
网”。
投稿邮箱:contact@landscape.cn
项目咨询:18510568018(微信同号)




