枡野俊明:江南布衣总部的景观构想
项目背景:
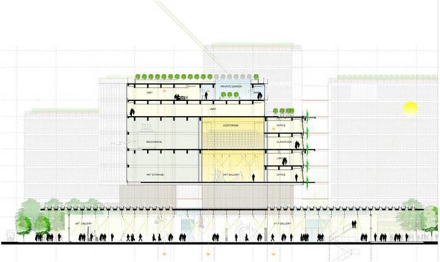
江南布衣总部位于杭州市西湖区天目山路,地处西湖与西溪之间,是集商业、秀场、艺术中心、美术馆、买手店、办公楼等多种功能于一体的新概念艺术园区,将于2018年竣工。该项目由GOA携手RPBW(Renzo Piano Building Workshop)伦佐•皮亚诺建筑工作室合作设计。设计师的基本想法是将建筑沿整个基地围合出一个125m×95m的绿色广场,称之为“城市客厅”。建筑的底层通过内退和通透的玻璃以实现悬浮的效果,并在顶层靠近广场的一侧减去两层作退台处理,为阳光开启绿色通道。环绕广场的建筑立面被设计成特殊的生态绿化幕墙,露台和屋顶作为第五立面将种植杭州的标志性树种——茶树,沿着广场一圈的建筑立面被设计成特殊的生态绿化幕墙。广场被斜线切割与打散,形成多样的城市连接和渗透空间,并限定出不同的植被、镜面水池及下沉广场等丰富的景观元素。其中经过仔细推敲而创作的景观节点,将成为项目中最有趣的元素之一。

枡野俊明(右)与陆皓(左)接受采访

江南布衣总部平面图 ©GOA


概念草图 ©GOA
建筑与景观,硬与柔
佘依爽:今天很荣幸,从北京专门到杭州来,在江南布衣总部的项目竣工之前,有幸采访到二位。首先我想先提问陆总,请您介绍一下江南布衣总部的诞生背景。
陆皓:江南布衣总部是集商业、秀场、艺术中心、私人美术馆、办公楼等多种功能于一体的新概念艺术园区。我们GOA未来的办公楼也会布置在内,于是我们有着既是业主,又是设计合作方的双重身份。园区的综合功能激发了我们对城市生活的艺术想象,所以我们选择伦佐·皮亚诺,一个非常擅长做艺术类项目的建筑师,这也是他在中国的第一个设计项目。
在项目初期的场地勘察完成之后,伦佐就画了一个苹果给我,他认为建筑就像苹果的表皮,打开苹果表皮之后,内部也应该很丰富,有丰富的味道和丰富的内涵。伦佐举例他在巴黎的家,家的周围有很多小广场,广场里有各种咖啡馆和锻炼、晒太阳等等各种各样人的活动。他希望这样的城市生活也能引入到这里。另外,他认为杭州是一个自然环境非常优美的地方,在这里可以体会到建筑与自然的和谐互动。他希望江南布衣总部的内部是绿色的,于是把垂直的绿化作为这个场所最主要的表现力。在屋顶种植茶树,这也是受杭州的生活体验启发,屋顶上的茶树不仅可以遮阴、被饮用,同时可以体现这种建筑与自然的互动的感觉。
佘依爽:所以建筑,或者建筑表皮作为苹果的坚硬保护,而景观作为最柔软的内核在中间,对吧?
陆皓:可以这么理解。伦佐最初的建筑外墙设想是玻璃幕墙,因为法规的问题,改成了金属外墙,是坚硬的、薄的,非常光洁的;内部的广场周边是垂直绿化幕墙,很多的植物。很薄的外在包裹着复杂的内核,一个非常强烈的对比效果。

伦佐•皮亚诺手绘苹果概念图 ©GOA


伦佐•皮亚诺手绘景观与建筑关系示意图 ©GOA



立体绿化竖向示意图 ©GOA

生态立面样板 ©GOA
真实的自然,自然的点睛
佘依爽:RPBW设计建筑,RANA CREEK设计绿化结构,JML负责水景,ARUP参与工程,DOTTOR负责清水混泥土,枡野俊明设计景观节点,为什么选择组建这个梦之队?
陆皓:要做到最好,这是业主江南布衣和我们的共同述求。业主很喜欢日系的风格,喜欢日本的服装、摄影、城市、园林。我们请枡野俊明先生做的是这个场地中的三个景观节点——庭院,也是最重要的点睛之笔。

景观分层分析图 ©GOA
佘依爽:枡野俊明先生如何理解景观和建筑之间的关系?
枡野俊明:我在看了项目场地以后,就立刻理解了伦佐•皮亚诺的苹果概念,场地的周围建筑在视觉上并不特别美丽,需要有所遮挡,形成一个独立的空间。在这个独立的空间里最精华的部分就是庭院部分,需要唤醒自我,回归本真。
伦佐的作品是非常近现代和当代的,我在考虑庭园设计的时候,会非常注重如何与当代的元素融合,同时又保留庭园应有的风格和样式,并仔细考虑:人在场地之中,是否会对环境产生一种非常舒心的环境。
佘依爽:一个是设计形式的呼应,一个是人体验的提炼。日本庭院在我看来是特别适合内向型的观赏与体验,您作为日本知名的造园师,如何在人流量特别大的城市公共空间里,保证体验的品质呢?
枡野俊明:不管人少和人多,对美的体验感都是要成立的。一定会有比较繁华的空间,也一定会有比较安静、供观赏的空间。每一个空间都有它自己的功能,人多的地方,人本身也是风景。每一个地方都有各自的心情,这才是好的空间设计。我并不是要用做庭院的方式来做所有的景观,在这个项目里,有三个重要的节点是需要用庭院点缀的。在这些节点里,最重要的是如何把人类最需要的东西投入,包括阳光、空气、飞过你头顶上方的小鸟,陆地上的水、石头。
陆皓:这个问题只有中国人才能提出。伦佐•皮亚诺做设计的时候是希望尽量多的人到景观中,他还担心在地下商业街会不会缺乏人的活动。我们说你不要担心,中国只会人太多,不会太少。这没有矛盾,人流量的多少不会影响景观的品质,如果真需要体会品质,可以选择人少的时候。


室内模型与效果图 ©GOA


江南布衣总部效果图 ©GOA
佘依爽:枡野俊明先生最近的讲座是希望把庭院带回中国,为什么?
枡野俊明:庭院的价值观和生活观都是从中国传承过来的,现在的中国经历了非常大的变化,我希望能把对日本庭院产生了巨大影响的禅宗庭院再带回给中国,特别是最原始的,宋代的样子。
陆皓:这也是我们为什么喜欢枡野俊明先生,请他做设计的原因。
佘依爽:枡野俊明先生您从日本历代造园师身上传承的东西,您认为是什么?
枡野俊明:从自然中学习,尊重大自然中的所有生命,把大自然的生命最终提炼出来,融合在所有的景致,任何东西里面。人不应该高高在上,而是和所有生物平等。人所能做的就是发现自然最美的一面,将其展示出来。比如石景,每一块石头都有石心,你所要做的就是仔细的观察它,发现这个石头的内心和真实,并展现出来,这就是最基本的。




枡野俊明在工作现场 ©枡野俊明

枡野俊明在设计过程中 ©枡野俊明

伦佐•皮亚诺在杭州工地现场

采访合影,枡野俊明(中),陆皓(左),佘依爽(右)
结语:
在江南布衣总部的项目中,伦佐自然而然的关注到了杭州人的当地生活,希望藉由建筑、景观、庭院营造街道的尺度和感受,形成一个相对隔离,但又处处生机的混合城市空间。枡野俊明先生理解并遵从总体的景观构想,准备将对自然的体验带入这个空间,对于这个正在构思还未出炉的庭院设计方案,我们期待它的实现。
感谢GOA大象设计张丰和七月合作社康恒,吴华桑桑对本文提供的帮助。
采访与整理:
佘依爽:《景观设计学》编辑部主任,江南电竞官网登录入口 网站主编。
采访时间与地点:
2015年3月26日,杭州江南布衣总部建设工地





发表评论
热门评论