山东淄博北河东村戏台设计 | 傅英斌工作室+ 中国乡建院
-
项目名称:山东淄博北河东村戏台
-
项目地点:山东省淄博市北河东村
-
项目规模:140平米
-
设计公司:傅英斌工作室(Fuyingbin Studio)  中国乡建院(CNRPD) 
-
建成时间:2018.8
-
图片来源:傅英斌、张浩然、丁沁
背景 The Background
戏台自古以来就在中国乡村文化生活中居于重要位置,通常戏台是一个村落的公共活动中心,乡间庆典,节日社火,村民集会几乎都是围绕戏台这一公共设施展开,即使建国以后新的乡村组织形成,戏台依然没有退出历史,戏台+主席台的结合使得戏台这一建筑形式有了新的发展。各种运动集会、乡村选举、节日演出等等活动继续延续戏台的生命。
Drama stages have occupied important position in the cultural life of Chinese countryside since ancient times. Usually a stage is a public activity center of one village. Rural constructions, celebrations, festivals and fires, and villagers’ gatherings used to be all centered around the stage, which is playing as a public facility. Even after the founding of the People’s Republic, drama stage has not withdrawn from the history. The combination of “stage and rostrum” had once gave this former traditional architectural element new life in modern context. Various sport events, rural elections, festival performances and other activities continue to extend the vitality of drama stages

▲戏台外观,external view of the stage ©傅英斌 Fu Yingbin
然而在当下随着乡村治理结构的变化和互联网生活的侵入,戏台在当下逐渐消退了原有功能,许多村庄投资修建的大型戏台长期处于闲置状态,其封闭的空间形式、巨大的体量和单一的功能在当代乡村的语境下日显尴尬。
However, with the change of rural governmental structure and the invasion of internet life-style, nowadays the original function of stages is gradually fading away. Many large stages invested by villages have been idle for a long time. Their enclosing space character, massive volume and singular function have become increasingly embarrassing in the context of contemporary villages.

▲场地原状,Existing conditions ©傅英斌 Fu Yingbin

▲位置图, Location Plan ©张浩然 Zhang Haoran
文化设施的建设是新一轮的乡村建设重要的组成部分,乡村图书室、文化站、大舞台等等一些列文化设施在新农村运动下被建成,然而多数设施没有很好的发挥应有的文化效能,大多处于闲置和荒废状态,乡村应该有一个怎样的文化空间,作为乡村文化标志性建筑的戏台应当以怎样的面貌出现在当下,是本方案设计师试图探索和回答的问题。
The development of cultural facilities is a significant part of the new round of rural development. Numerous rural libraries, cultural stations, grand stages and other cultural facilities have been built under the New Rural Movement. However, most of the facilities have not work effectively to play a cultural role and are mostly idle or even abandoned. What kind of cultural space should rural areas have? What kind of image should the stage present as a cultural rural landmark in contemporary context? By this design scheme we try to explore and answer these questions.

▲乡村集市,戏台和乡村生活融为一体,Rural market, the stage became part of the local life ©丁沁 Ding Qin
方案 The Scheme
北河东戏台希望摈弃传统戏台过于封闭的空间和单一的功能,为村民提供多种日常活动和集会的新空间。空间形式上去掉了墙体,以一个巨大的漂浮天棚为各种活动提供遮蔽空间。将现有各种活动整合在天棚之下。天棚之下为一个四面开敞的空间,中间抬高形成视觉焦点,也便于演出等活动的展开,台上两侧升起为座椅,平时非演出时在台上活动的村民可以围坐聊天,舞台另外两侧向广场逐级变为台阶,为日常活动提供休息设施。铺装延伸至广场后,边缘设置观演座椅。整个戏台以一种自由开敞和公共的姿态呈现在村庄之中,承载村民的各种公共活动。
On designing Beihedong stage we hope to discard the over-enclosing space and singular function of traditional stages, to provide villagers new spaces for various daily activities and gatherings. Walls are discarded from the spatial formation, a huge floating skyhook ceiling is applied instead, providing shelter for various activities and integrating existing activities underneath. A space opened on all four sides is then formed under the suspended ceiling, with the middle raised to form a visual focus, also convenient for performances. The two sides of the stage are raised as seats, where villagers can sit around and chat when there are no performances on. The other two sides of the stage turn into steps providing rest facilities for daily activities. The pavement extends to back of the square, at its edge there are also audience seats. The whole stage is presented in the village in a free, open and communal manner, carrying all kinds of public activities for villagers.

▲环境分析图,Context analysis diagram ©张浩然 Zhang Haoran

▲建成鸟瞰,bird view of the built stage ©傅英斌 Fu Yingbin
场地位于村庄广场一端,西北两侧为建筑围墙,东南侧为广场和道路,由于现有建筑的阻挡,戏台原本四面敞开的想法难以实现,因此面向围墙的两侧顺势向上抬起变为座椅,而另外两外两侧戏台空间向外延伸,形成一个小型的观演区域。整个戏台底层平面与屋顶形成一大一小两个错位的正方形,形成一种特殊的空间错位关系。
The site is located at one end of the village square, with building walls on both sides of the northwest, whereas square and roads on the southeast. Due to the obstruction of the existing buildings, the idea that the stage should be open on all sides became difficult to realize. Therefore, the two sides facing the walls are lifted upward and then turned into seats, while the other two sides extend outward, forming a small audience area. The whole floor plane of the stage and the roof form a set of two malposed squares, one large and one small, forming a special staggered spatial relationship.

▲戏台两侧为围墙,另外两侧向外延伸,形成观演空间,two sides of the stage that are not facing the walls extend to be a small audience area ©傅英斌 Fu Yingbin

▲戏台靠墙的两侧升起成为座椅,two sides of the stage that a facing the walls were extruded as seats ©傅英斌 Fu Yingbin
乡村建设不必刻意恢复传统结构技术和材料,作为一个鲜活的“生命体”,有自我发展的权利。钢网架作为一种极为成熟的结构体系被广泛用于大跨度屋面,戏台顶棚也采用了钢网架结构,网架由工厂加工完成后现场只需要两天时间就可以快速组装完成。网架四周下垂钢格栅如同垂幕,使整个屋顶形成一个具有漂浮感的“伞盖”,向下投射出一个具有空间感的场地。
We think rural development does not have to deliberately reuse traditional tectonics and materials, instead, as a growing “living body”, it has the right of self-evolution. As a very mature contemporary structural system, steel grid is widely used in large-span roofs. Steel grid structure is also used in the ceiling of this village stage. It takes only two days on site to assemble and complete the whole steel structure, after pre-casted by the factory. The sagging steel grille of the skyhook ceiling acts as a hanging curtain, which makes the whole roof became a floaty-look “umbrella”, projecting the site downward with spaciousness airiness.

▲屋顶形成“伞盖”,投射出一个具有空间感的场地,the whole roof became a “umbrella”, creating a place with spaciousness downward ©傅英斌 Fu Yingbin

▲观演区,audience area ©傅英斌 Fu Yingbin

▲分解轴测图,exploded axonometric ©张浩然 Zhang Haoran
红色是中国乡村喜爱的色彩,整个屋面结构被喜庆的红色喷涂,犹如一个红灯笼,成为村子的标志性构筑。戏台所在的广场同时还是一个乡村集市的场地,每当集市的时候五颜六色的货摊和熙熙攘攘的人群与这座巨大的红伞盖形成一幅奇幻而又互相映衬的乡村生活景象,同时伞盖和下放多功能的基座空间还可以容纳一部分集市摊位,使戏台与乡村集市融为一体。
Red is a favored color in Chinese countryside. The whole roof structure is sprayed with festive red, like a red lantern, which becomes a landmark installation in the village. The Plaza where the stage located is also a place for the rural market. When markets are held, colorful stalls and bustling crowds form a fantastic and mutually contrasting picture of rural life under the huge floating red canopy. At the same time, the red canopy and its multi-functional basement space also accommodate part of the market stalls, integrating the stage with the rural fairs.

▲细部,红色的结构和地砖,details, red structure and brick ©张浩然 Zhang Haoran
影响 The Impact
戏台建成后迅速成为公共活动的聚集场所,村里老人晒太阳、聊天、打牌、等一系列活动均依托戏台展开,即使阴雨天气巨大的屋面同样为活动提供遮蔽空间,同时戏台也成为乡村集市的交易中心,外围的坐凳和基座的台阶都成为摆摊售卖的绝好设施。乡村建设不是造“盆景”,不必过于拘泥于形式和材料上的“传统”和“传承”,以当代社会技术条件为基本手段,服务于当下乡村的切实空间诉求或许是更好的选择。
The stage quickly became a gathering place for public activities once upon completion. Elder villagers enjoy the sun, chatting, playing cards around the stage, where the roofs providing shelter for activities even in rainy weather. At the same time, the stage became a flexible trading center for the rural market, as the benches and steps at the base of its periphery become excellent retail places. Rural development is not to create bonsai; therefore, its design has not to be fully constrained within the forms and materials chasing “tradition” and “inheritance”. Sometimes it is perhaps a better choice to honestly serve the realistic and unique demands of current countryside using contemporary techniques as fundamental methodologies.

▲建成启用仪式,Completion and opening ceremony ©傅英斌 Fu Yingbin

▲村民广场舞,stage dancing ©傅英斌 Fu Yingbin

▲村民活动,villagers gathering in the space ©傅英斌 Fu Yingbin

▲夜景,night view ©傅英斌 Fu Yingbin


▲戏曲演出,drama performance ©傅英斌 Fu Yingbin

▲轴测图,axonometric ©张浩然 Zhang Haoran


▲立面图,elevations ©张浩然 Zhang Haoran

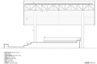
▲剖面图,section ©张浩然 Zhang Haoran
项目名称:山东淄博北河东村戏台
地点:山东省淄博市北河东村
设计时间:2018.3
建成时间:2018.8
面积:140平米
主创建筑师:傅英斌
团队:张浩然、宋嘉、王全会
设计单位:傅英斌工作室(Fuyingbin Studio)\ 中国乡建院(CNRPD)
结构设计:淄博四新建筑设计有限公司
投资方:淄博市周村区人民政府、淄博市周村区王村镇人民政府
摄影:傅英斌、张浩然、丁沁
邮箱:fuyingbin999@126.com
Project Name: Drama stage of Beihedong Village, Zibo City, Shandong Province
Location: Beihedong Village, Zibo City, Shandong Province
Design time: March 2018
Completion time: August 2018
Area: 140 square meters
Chief designer: Fu Yingbin
Team: Zhang Haoran, Song Jia, Wang Quanhui
Office: Fuyingbin Studio / CNRPD
Structural Design: Zibo Sixin Architectural Design Co., Ltd.
Investors: People’s Government of Zhoucun District, Zibo City; People’s Government of Wangcun Town, Zhoucun District, Zibo City
Photography: Fu Yingbin, Zhang Haoran, Ding Qin
E-mail: fuyingbin999@126.com
版权声明:本文版权归原作者所有,如有侵犯您的权益请及时联系,我们将第一时间删除。
投稿邮箱:contact@landscape.cn
项目咨询:18510568018(微信同号)




