印度 Harnav 河畔公园景观设计
admin
2016-07-04
来源:archdaily
-
项目名称:
-
项目地点:古吉拉特邦,凯德布拉赫马
-
项目规模:3392平方米
-
设计公司:
-
施工单位:UA Lab + Keyur Shah & Associates
-
图片来源:Anand Shukla & Dhrupad Shukla
该项目是由两个建筑公司合作设计和施工建成的。
位于艾哈迈达巴德的 UA Lab (城市建筑合作协会(Urban Architectural Collaborative)) 和希马特纳加尔的 Keyur Shah & Associates。
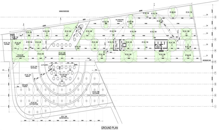
该项目成功地在预算和预定时间内完成。凯德布拉赫马是印度古吉拉特邦区萨巴坎塔县的一个小镇。三条小河流在这里交汇,当地人将该交汇点称为 Harnav。凯德布拉赫马地区的市政部门决定沿着 Harnav 河畔为小镇建一座公园。这座公园选址本作为垃圾场使用。这个公园将被打造成一个供人们休息,享受和放松的公共娱乐空间。Harnav 河并不是常流河,只有在雨季才能欣赏到河流的美景。该设计着重于打造一个公共休闲环境,能够充满多样性和连续性,建立季节性河流和周围环境的多层联系。步行道与河岸平行,人们可以在沿河岸散步时欣赏景色。这个步道的设计从河流的运动中汲取灵感,柔和地上下波动。
当一个人沿着这线性道路连续移动时,和周围环境的感受和互动一直在改变。这些路径的上下移动建立了新的程序化的连接。在某些地方它是沿着道路的边缘步行道,随着它向下移动它转变成高度较低的座椅。当改路径再次向上移动,它将沿着莲花池形成一座桥,同时相同的路径变平作为自助餐厅前的休憩。这个线性连续运动通过创建多样的游客体验供游客享受。这些丰富多样的体验让所有年龄组的大人和儿童都能有机会享受河岸带来的乐趣。在河岸上有座椅和种植提供绿化和遮荫。当人们在这个地方休闲地散步时,可以收获类似于在水中运动的感受。每条通道的斜率都通过精心设计,流水通过管道从一个通道通向另一个最终入河。游客从斜坡路到达平地时可自主改变行走的路线,每条路都提供排水通道。
位于艾哈迈达巴德的 UA Lab (城市建筑合作协会(Urban Architectural Collaborative)) 和希马特纳加尔的 Keyur Shah & Associates。
该项目成功地在预算和预定时间内完成。凯德布拉赫马是印度古吉拉特邦区萨巴坎塔县的一个小镇。三条小河流在这里交汇,当地人将该交汇点称为 Harnav。凯德布拉赫马地区的市政部门决定沿着 Harnav 河畔为小镇建一座公园。这座公园选址本作为垃圾场使用。这个公园将被打造成一个供人们休息,享受和放松的公共娱乐空间。Harnav 河并不是常流河,只有在雨季才能欣赏到河流的美景。该设计着重于打造一个公共休闲环境,能够充满多样性和连续性,建立季节性河流和周围环境的多层联系。步行道与河岸平行,人们可以在沿河岸散步时欣赏景色。这个步道的设计从河流的运动中汲取灵感,柔和地上下波动。
当一个人沿着这线性道路连续移动时,和周围环境的感受和互动一直在改变。这些路径的上下移动建立了新的程序化的连接。在某些地方它是沿着道路的边缘步行道,随着它向下移动它转变成高度较低的座椅。当改路径再次向上移动,它将沿着莲花池形成一座桥,同时相同的路径变平作为自助餐厅前的休憩。这个线性连续运动通过创建多样的游客体验供游客享受。这些丰富多样的体验让所有年龄组的大人和儿童都能有机会享受河岸带来的乐趣。在河岸上有座椅和种植提供绿化和遮荫。当人们在这个地方休闲地散步时,可以收获类似于在水中运动的感受。每条通道的斜率都通过精心设计,流水通过管道从一个通道通向另一个最终入河。游客从斜坡路到达平地时可自主改变行走的路线,每条路都提供排水通道。
发表评论
您好,登录后才可以评论哦!




