奥林匹克下沉广场庭院设计
-
项目名称:
-
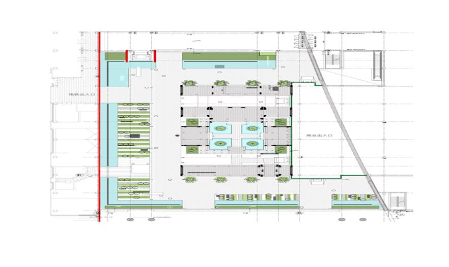
项目地点:北京奥林匹克中心区2#院
-
项目规模:4080平方米室外空间
-
设计公司:
-
施工单位:THAD - Architectural Design & Research Institute of Tsinghua
-
图片来源:张广源
奥林匹克中心区下沉花园2#院取名“瓦院”。通过诠释一组北京四合院建筑空间片断,以具有代表性的中国传统建筑材料-瓦作为主要表达手段,结合树木、室外水景等手段,展现北京的地域文化特色,形成有地域文化背景的室外休憩场所。建筑设计在现实与传统之间建立联系纽带的归属感,传统文化中积淀的受大众文化包容认可的社会审美价值和人文意境是设计中寻求与传统结合的法则。院落的主题是表达传统文化背景下市民生活的意境
院落的核心是一组北京民居中具有代表性的三进制四合院,除了完整的屋面以及支撑屋面的传统做法体系之外,非承重构件全部被去掉了,代之以开放的室外空间,将传统的封闭空间演化为开敞的室外空间。院落中加入镂空瓦墙、倒影水池、立瓦铺地等元素,给传统空间注入新的表达语言。所有的建筑围绕着中心院落这一向心主题展开,内敛、聚合、互动,展现给人以自然舒展的空间交往性,追求“城市的客厅”的空间性格,在尺度巨大的奥林匹克公园给公众一个开放的、可以自由出入的惬意的城市休闲空间。
四合院的外围是一组景观花墙,以传统灰瓦砌筑成镂空墙,中间勾勒出传统民居围墙中典型的什锦花窗图案。花墙的顶端设置溢水装置,整面墙成为一组成为滴水花墙。水滴顺着墙顶瓦当滴水的端点流下,成水线或成水珠串,加上景墙下面的水雾,折射出中国古代许许多多文人墨客笔下描绘的檐下听雨声的诗意境界。
院落旨在为公众提供一种开放的公共文化空间,在大尺度的外部环境中,营造出亲切灵动的空间氛围,将要在这里发生的人的各种活动是形成院落性格的元素。院落拥有地地道道的北京面孔,也是一张与中国给人沉甸甸历史重量感相符的面孔,这是一个尊重传统美学价值又具有充分时尚性的面孔。



