昆士兰棉花山山坡上的生态概念小屋建筑设计
admin
2015-05-07
来源:江南电竞官网登录入口
网
澳大利亚ABA工作室选择在昆士兰州东南的雷德兰湾的棉花山山坡上设计一系列生态概念小屋。建筑基地由一个第五代的农民提供,在多年的快乐生活之后,他决定分享这里拥有的美景。
↑一间卧室小屋的露台和两间卧室小

澳大利亚ABA工作室选择在昆士兰州东南的雷德兰湾的棉花山山坡上设计一系列生态概念小屋。建筑基地由一个第五代的农民提供,在多年的快乐生活之后,他决定分享这里拥有的美景。

↑一间卧室小屋的露台和两间卧室小屋的露台
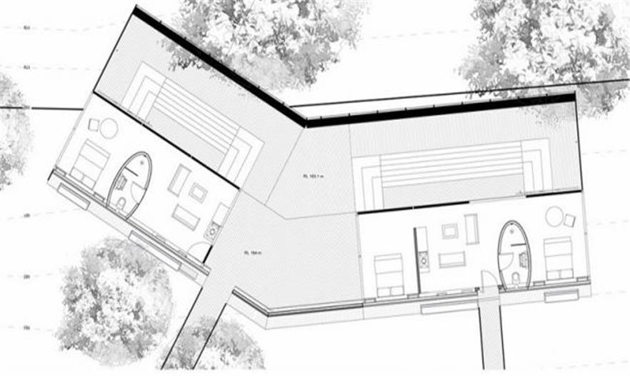
设计包括五个小屋,每个小屋一到两间卧室,这些小屋轻巧的坐落在山坡上,为住户提供小屋周边绵延数英里的景色。为了保证尽可能减少地面的打断,小屋的设计和位置都经过精心考量。每个空间在不影响客人看风景的情况下都经过调整以获得最大的私密性。在室内,舒适的家具布置不但给游客以离网生活体验,还让其功能性与品质一直维持在较高的水平上。

↑后面带有较大卧室的小屋

↑一间卧室小屋的室内家具

↑透视图

↑总平面示意图

↑两间卧室平面图

↑总体规划
发表评论
您好,登录后才可以评论哦!



