年度建筑设计奖获得者:Matilde住宅

来自建筑师。2011年,一位年轻人邀请我们为他的母亲设计一座住宅,她没有多少财产,生活在一座具有严重结构和卫生问题的住宅中。


Dalva 女士已经在这座 Matilde 住宅中生活了几十年。该住宅位于巴西圣保罗的边远社区。这里离她的亲戚们很近。第一选择是卖掉这座住宅,利用她的毕生积蓄再买一座小公寓,这座公寓可能更偏远,可能连电梯都没有。因为她现在的年纪,这种情况很糟糕。



很快情况变得非常明显,应该拒绝换置和隔绝。不应该搬走。抱有这种想法,我们和合作者们要保证能够成功。改造开始后,就不能在回到最初的状态了,只能将工作进行到底。同时项目设计和建设过程需要符合家庭受限的经济条件。

2014年初,房屋明显开始腐化并开始坍塌。Dalva 女士租住到了一位亲戚家。新的住宅必须尽快建造,不然她的积蓄就会很快被花光。我们根据经验利用了暴露的结构墙体,支撑起这座廉价住宅。这种做法需要对项目强大的控制力和灵活变通能力。


最大的挑战来自于项目开始的时候。对旧建筑的精心拆除花费了几个月的时间,同时我们进行了基础和保留墙壁的加固工作,因为它们需要支撑起整座住宅。住宅在砖石工作开始六个月之后完成了。
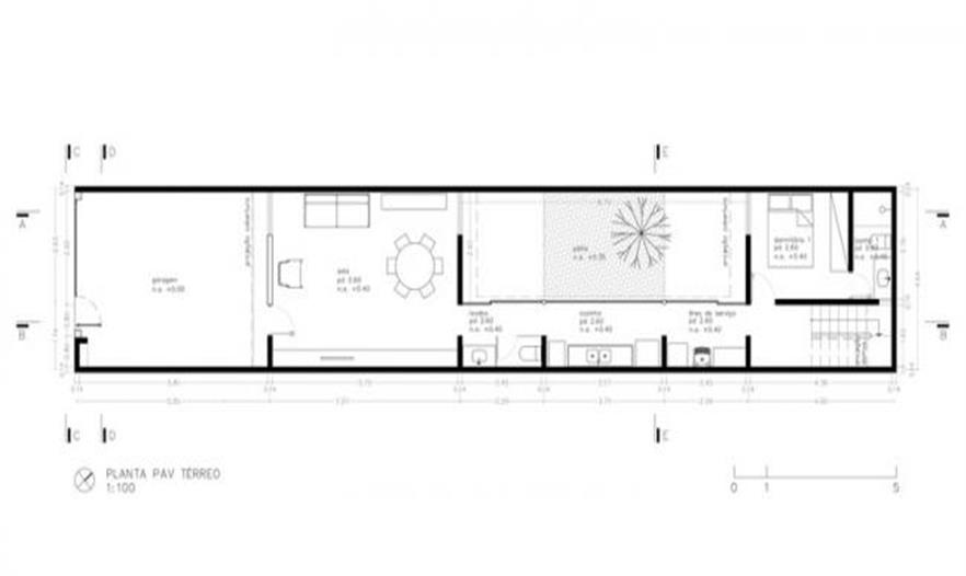
住宅所在的是一块4.8米乘25米的狭长城市地块。首层包括了起居室、厕所、厨房、洗衣房和卧室套件,这种都在一层的设计关怀了年迈的屋主。一条通道连接了一层素有的功能,包括庭院、位于前面的起居室和位于后面的卧室。在住宅的中央,绿植庭院提供了充足的采光和通风。这一区域同时也成为了厨房和洗衣房的延伸。二层是一间客卧,加上客卧后的住宅总面积是95平米。起居室的混凝土板屋顶上有一个菜园,在未来住宅需求提升时还可以方便进行加建。
虽然想法很简单,但是为了达到良好的结果还是花费了大量的时间,整个过程繁杂但令人充满满足感。




