江西大坊荷兰创意村建筑设计 | NEXT architects
-
项目名称:大坊荷兰创意村
-
项目地点:江西省大坊县
-
项目规模:48.000平方米
-
设计公司:NEXT architects 
-
委托方:金溪县政府
-
建成时间:2020年
中国经历了一个前所未有的城市化进程,从农村社会占主导地位,到2050年估计将有10亿中国人生活在城市。在这一转变过程中,至今为止,城市移民已经让数十万个村庄“空心化”现象十分严重。其中许多村落具有几十代人的社会、文化和纪念性价值,但在目前却缺乏重大的未来意义。
为了应对这一挑战,NEXT建筑事务所与荷兰遗产与市场研究所(IVEM)、Smartland(景观设计)、Total Design(平面设计)及众多艺术家一起,应江西省金溪县政府的要求,为其102个古村落之一的大坊村制定了一个振兴策略。NEXT建筑师事务所负责总体规划、建筑和内部设计。

▲改造后的大坊村鸟瞰

▲村庄顶视图
“乡村振兴是中国未来的重要发展方向之一。我们认为,这就要求在新与旧、居住与旅游、历史与未来之间找到平衡点进行设计。”——John van de Water, 北京NEXT建筑师事务所合伙人
适应 “新意”
大坊村有900多年的历史,仅存的明清时期古建十多年缺少维护。金溪政府 “希望荷兰文化概念振兴大坊 “的愿望被转化为设计策略:”以新应变”。NEXT建筑师为中荷艺术家们设计了一个灵活而有吸引力的环境,让他们在当地工作、交流和展览。整个村子,包括建筑和景观,都成为了一个能够不断自我革新的互动环境。因此,未来的游客和居民将被这里所吸引和启发。

▲改造后的村庄外观
改造措施
改造措施的设计分为三个层面。首先,在可能的情况下,对城镇空间、建筑和景观进行修复,使用新材料,在新旧元素之间建立起对话。例如:用玻璃瓦恢复了老房子的屋顶,修复了古老的灌溉系统,添加了诸如天然的植物过滤器等元素来净化水。


▲项目保留并修复原始建筑材料

▲从乡村客厅看向瞭望塔,新旧材料间形成对话
其次,还增设了瞭望塔和乡村客厅:新的建筑结构借鉴了现场的先例。这一带的古村落都有防御用的瞭望塔。原有的瞭望塔早已不复存在,新的瞭望塔被设计成了犹如两条巨龙相互缠绕,互相支持,团结一心的形状。瞭望塔上随着每一台阶的转移,目光都将游离在故乡和远方,既可以看到村子里的新旧景色,也可以看到远处的乡村风景,远眺地平线上的山峦。瞭望塔在当地被誉为 “游子塔”,这让人想起中国著名诗人李白的一首诗,诗中描写了人们思亲返乡的故事。

▲瞭望塔生成图解

▲瞭望塔外观

▲瞭望塔入口

▲交错的步道提供不同方向的视角
在村子的中心,NEXT设计了新的乡村客厅(古樟树咖啡厅)。乡村客厅是在文化大革命时期被毁的四合院旧址上修建的。独特屋顶的灵感和造型来自于村旁的一棵千年古樟树,几百年来,它那高大的树冠为村民们提供了一个聚集的空间。古樟树的造型融入村子的结构中,提供了一个有遮蔽性的集体空间。树叶形态的定制陶瓦立面也为鸟儿提供了筑巢的地方。

▲乡村客厅设计概念

▲乡村客厅外观

▲建筑提供有遮蔽性的集会空间,地板为蒙德里安式图案
三是通过艺术和功能活动对空间进行规划。新的乡村博物馆、图书馆和艺术家工作室是给村庄带来新活力和创造力的新功能。艺术家被允许对村庄的结构做出应对:增加、改变和改造村庄的环境。例如,乡村客厅的地板被一位中国艺术家用蒙德里安式的图案画了出来。荷兰艺术家赫尔曼-拉默斯在一栋老房子里安装了一架飞机,名为 “梦”。



▲老房子里设置艺术作品

▲带有图案的的乡村道路
整体而言,荷兰-大坊创意村是中荷建筑师、设计师和艺术家多领域共同合作,为农村带来新生活的启发。


▲夜景
“荷兰-大坊创意村已于上个月开放,每天都会吸引上千名游客前来参观。我们希望它将产生积极持久的社会和文化影响,并为中国的古村落提供一个新的发展模式。”NEXT建筑师事务所合伙人蒋晓飞说。

▲瞭望塔一层平面图

▲瞭望塔二层/三层平面图

▲瞭望塔立面图

▲乡村客厅一层平面图

▲乡村客厅屋顶平面图


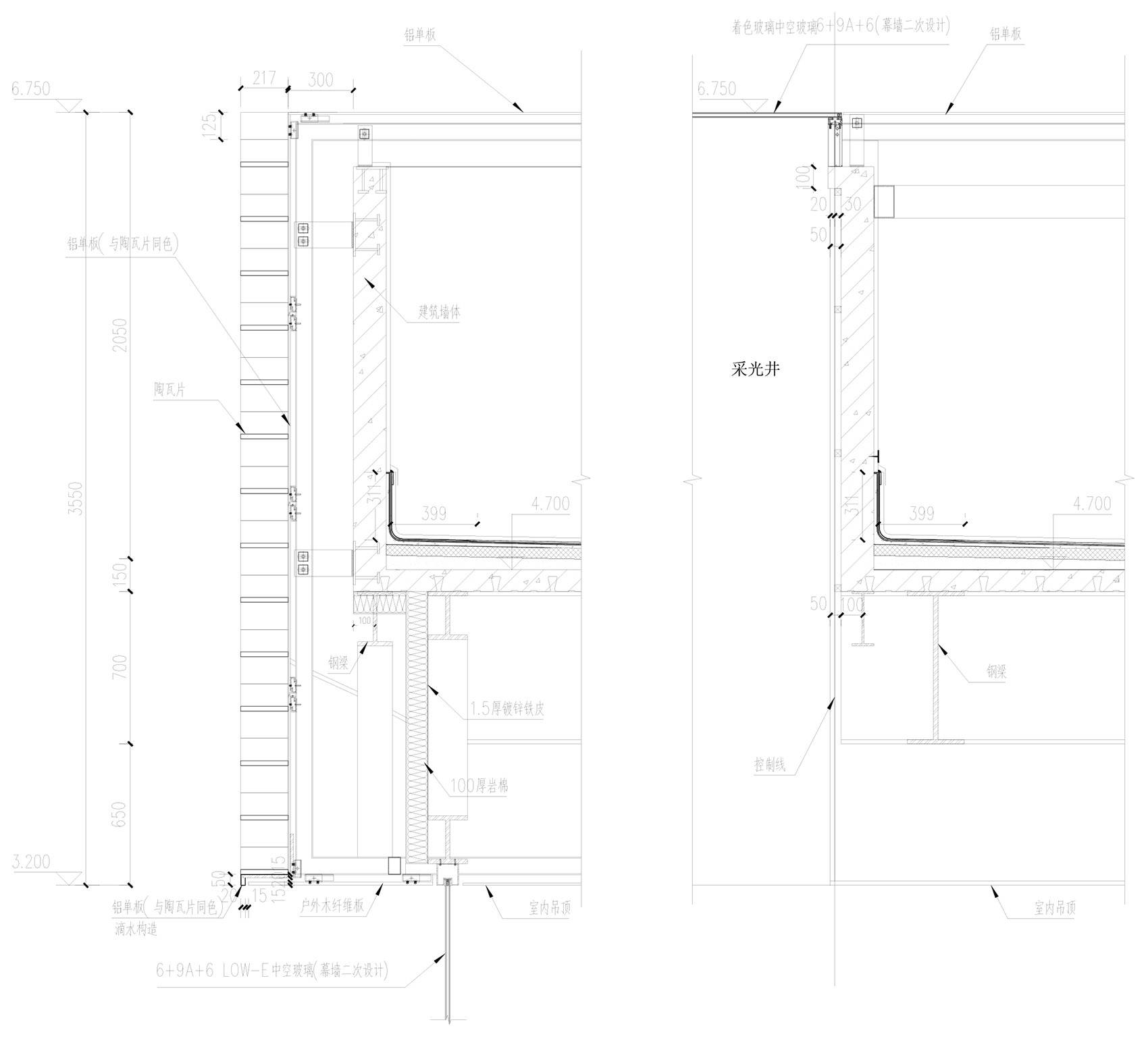
▲细部图纸
版权声明:本文版权归原作者所有,如有侵犯您的权益请及时联系,我们将第一时间删除。
投稿邮箱:contact@landscape.cn
项目咨询:18510568018(微信同号)




