越南槟椥TTC 精英幼儿园景观建筑设计 | kientruc o
-
项目名称:幼儿园
-
项目地点:越南槟椥
-
项目规模:3,728 sqm
-
设计公司:kientruc o  
-
图片来源:hiroyuki oki
TTC精英幼儿园位于越南南部湄公河三角洲地区的槟椥市,紧挨着槟椥市城市公园内的truc giang湖。kientruc o设计师们觉得幼儿园应该给孩子们应该在一个充满乐趣的环境中自由的探索和学习、展示自己最好的一面。

© Hiroyuki Oki

© Hiroyuki Oki

© Hiroyuki Oki
为了与这片土地的美丽自然与丰富人文相匹配,建筑师采用了越南传统的建筑语言,例如敞开式的格局,在丰富的剖面中展开建筑平面的布置,让建筑内外更好地拥抱自然。

© Hiroyuki Oki
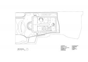
幼儿园由两个独立的部分构成:一个是山坡的形式,山坡之上一个是规整的几何形状的体量。这个规整的体量为孩子们的艺术培养和室内活动提供了优质的空间,同时为全景式的城市风貌提供了理想的观赏点。该体量下部的“山坡”空间,是幼儿园的核心组成部分。其中包括由大型多功能厅连接起来的教室,用于进行日常和特殊场合的各种教育活动。

© Hiroyuki Oki
在这个多功能大厅中有一个大型的景观游乐场,敞开式的格局让空间与其他部分紧密相连,是孩子们和父母亲全天候互动游戏和交流的理想之地。槟椥是湄公河三角洲内一个相对平坦的区域。山丘的建筑形象为城市带来了更多的起伏变化,十分新颖。场地西侧面向 Trúc Giang 湖,因此建筑从西向东逐渐起坡抬升,并在坡的顶部置入方形体量。这种处理场地的方式改变了现有的一成不变的城市结构,让幼儿园的氛围更加活泼。周围的居民和山坡上玩耍的孩子之间也能产生视觉交流。可以说,建筑不仅很好地对自然敞开,也巧妙地融入到了社区内部。

© Hiroyuki Oki
山坡部分是该幼儿园项目最为重要也最具特色的部分,它能够激发孩子们的好奇心,为他们带来多重感官体验。孩子们在山间嬉闹、学习和活动,兴奋地感受着周围环境,质疑着,探索着,期待着。体验式的幼儿园生活,让孩子们在各个方面都能得到锻炼和成长。

© Hiroyuki Oki

© Hiroyuki Oki

© Hiroyuki Oki

© Hiroyuki Oki

© Hiroyuki Oki

© Hiroyuki Oki

© Hiroyuki Oki
版权声明:本文版权归原作者所有,如有侵犯您的权益请及时联系,我们将第一时间删除。
投稿邮箱:contact@landscape.cn
项目咨询:18510568018(微信同号)




