日本MRN幼儿园景观建筑设计 | HIBINOSEKKEI +日比野设计
趁微风正好
2020-03-20
来源:archcollege
-
项目名称:日本MRN幼儿园建筑设计
-
项目地点:日本
-
项目规模:1113.0 m²
-
设计公司:HIBINOSEKKEI +日比野设计 
-
建成时间:2019
-
图片来源:Studio BAUHAUS

这是一座位于日本宫崎县都城市Kirishima山脚下的乡野间的幼儿园兼托儿所。曾经在此读书的那波孩子,即使在多年之后,也会常常带着他们自己的孩子回来。这已经成为了牢牢扎根于当地人思想深处的风俗习惯。从这一代代人的传承中获取灵感,项目设计的主题被设定为“纽带”。


原建筑在过去的30年间被更新扩建了几次,但仍然没有达到我们我们今天培育孩子所需的理想环境。因此,在拆除旧建筑之后,新建筑的设计进行了适当的规划,界定出不同功能如学习、玩耍、就餐和运动等所需的空间。





四棵老树被保留了下来,人们仰望着它们,照看着茁壮成长的下一代。在所有的托儿所房间里,都能看到这几棵树。通过将它们置于中央来进行建筑设计,建立起了房间、树木和孩子之间的视觉联系。二层的消防楼梯一路延伸至树木枝杈的下方,孩子们可以近距离地感受它们,同时在其下方创造出玩耍空间。场地上种植了许多产自宫崎县的红松和扁柏树,用以建立幼儿园场地与当地社区和自然的联系。根据功能来进行空间的适当分隔,孩子们可以自己鉴别、思考、学习和估摸在特定的空间里该具如何去行为表现。






室内













夜景


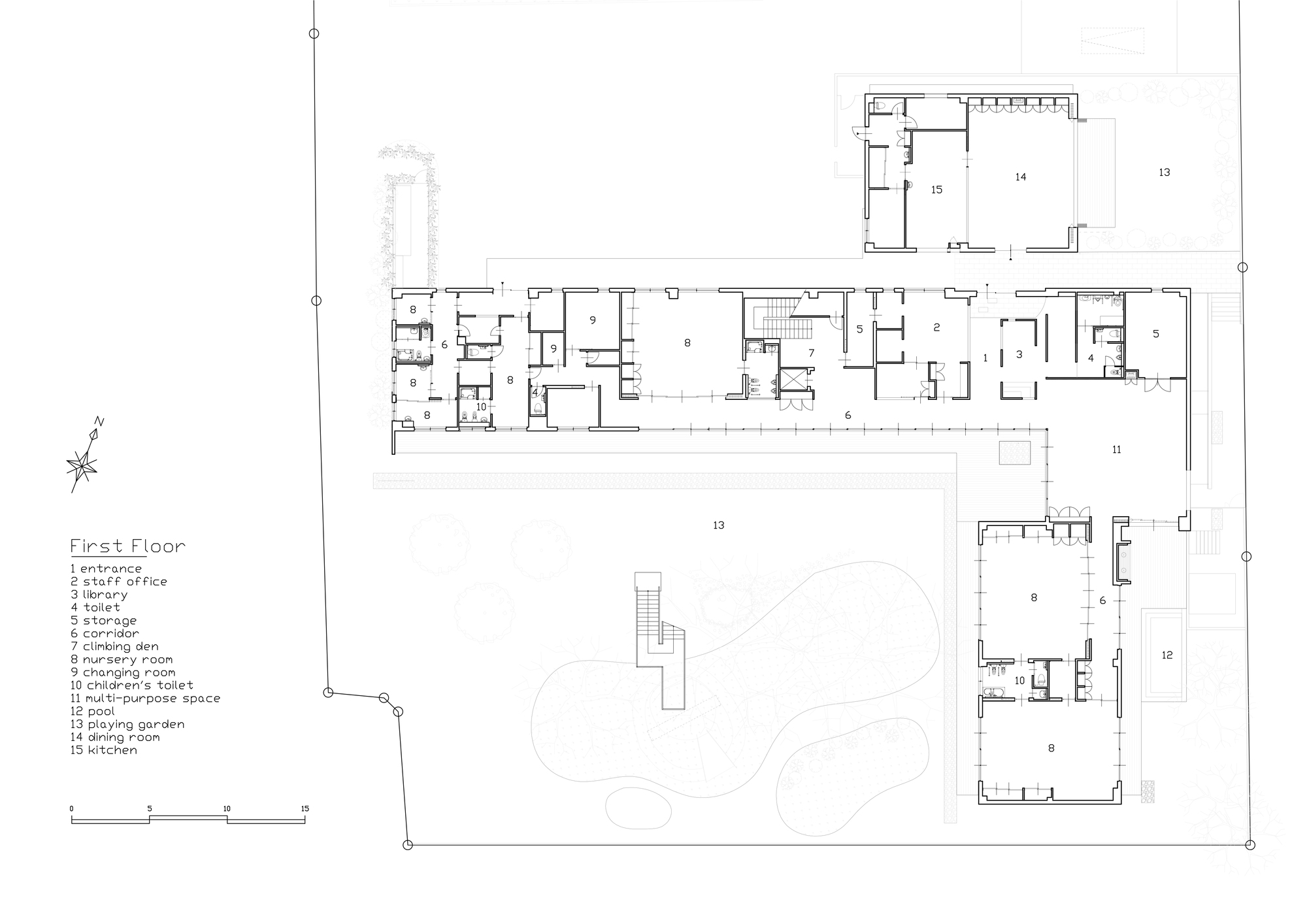
项目图纸

▲ 一层平面图

▲ 二层平面图

▲ 立面图

▲ 剖面图
版权声明:本文版权归原作者所有,如有侵犯您的权益请及时联系,我们将第一时间删除。
投稿邮箱:contact@landscape.cn
项目咨询:18510568018(微信同号)
发表评论
您好,登录后才可以评论哦!




