悉尼公园水资源再利用项目景观设计 | Turf Design Studio
-
项目名称:悉尼公园水资源再利用项目
-
项目地点:澳大利亚新南威尔士州悉尼市
-
项目规模:16000m2
-
设计公司:Turf Design Studio 
-
委托方:悉尼市政府
-
建成时间:2015年5月
-
所获奖项:2018年芝加哥雅典娜建筑与设计博物馆及欧洲建筑艺术设计和城市研究会国际建筑奖最佳奖、2018年第59届年度公民信托奖、2017年亚太地区国际景观设计师联合会公园和公共空间卓越奖、2016年澳大利亚景观设计师协会国家奖(基础设施类)
▼悉尼公园水资源再利用项目视频解析 © Turf Design Studio & Environmental Partnership
千年大旱引发对水资源的关注
20世纪90年代末至21世纪初的千年大旱,是澳大利亚历史上最严重的一次干旱。在2012年正式宣告旱期结束之前,悉尼市都不得不从其他偏远的河流流域引流以维持其供水。自此次事件以来,悉尼市政府开始未雨绸缪,批准并实施了《水资源分散管理总体规划(2012~2030年)》(Decentralized Water Master Plan (2012~2030)),并将之作为“悉尼2030可持续发展战略规划”(Sustainable Sydney 2030)的一部分。该规划力图通过一系列策略减少自来水的消耗和需求,包括建立雨水花园、植被系统、雨水循环系统和热电冷联产工厂等。
悉尼公园水资源再利用项目是这一系列水资源综合管理策略的一部分。在“全国城市用水和海水淡化计划”(National Urban Water and Desalination Plan)之下,设计方与澳大利亚政府合作建设,使其成为悉尼市迄今为止最大的环境保护工程。作为“悉尼2030可持续发展战略规划”的重要组成部分,该项目期望通过在公园内蓄集本地水资源并将之再利用的方式来满足悉尼市10%的用水需求。由于全球气候变化,澳大利亚东南部的降水会愈加无规律,因而该项目展示了一个能应对城市未来几十年发展变化的综合性预案,即在当地水体的流域范围内为该城市提供急需的水资源供应。城市从而抓住了一次千载难逢的机会,以基础设施工程为载体,赋予公园以新的生机,为悉尼提供一个充满活力的休闲与环境资源。
▼悉尼公园改造前后的变化 © Ethan Rohloff

▼悉尼公园水资源再利用项目整体鸟瞰 © Ethan Rohloff

水资源再利用设计愿景
该项目预期实现三个关键目标:
1)水资源管理:有效收集城市废水,改善水质,并减少饮用水消耗。
2)打造景观和栖息地:加强公园现有水体之间的视觉和功能上的联系。改善景观环境,升级休闲设施,增强环境舒适度,提升栖息地价值。
3)诠释场地:通过对场地的设计与艺术性表现来揭示和讲述公园中水的故事,包括提供交互式游戏和教育的体验机会。
▼悉尼公园水资源再利用项目夜间鸟瞰 © Ethan Rohloff

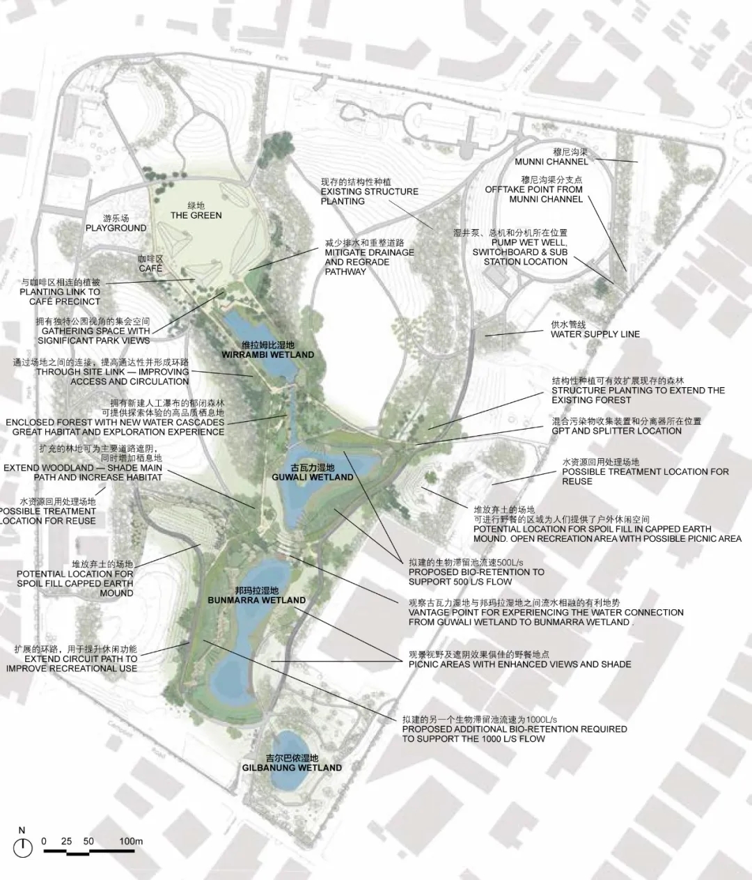
▼悉尼公园总平面图 © Turf design Studio & Environmental Partnership

关键设计策略
悉尼市政府和设计团队认识到,要想充分把握该项目以及场地所提供的机会,必须建立一个全面协作的设计环境。他们因此总结了一系列的关键策略,以确定和指导项目的设计、开发和交付。
1.水的再利用与排放
项目贯彻悉尼政府所推行的大型蓄水倡议,其每年可蓄集并净化的水量相当于340个奥林匹克运动会标准游泳池的容量。而当这一用于水资源回收的街道网络系统扩展到东部工业区域时,相应的饮用水的消耗量将有效减少。
在过渡时期,大量蓄集的水将用于灌溉公园中的景观。为维持水循环的平衡,少量蓄集的水将通过亚历山大河道中的排放系统排出,净化过后的水体可减少原有城市排水过程中对城市集水区的水道和水环境的影响。
▼雨水蓄集策略图 © Turf design Studio & Environmental Partnership

▼成叉状的考顿钢高架水道将水流引至生物滞留池中,使其在净化后排入古瓦力湿地(Guwali Wetland)中。© Scott Ibbotson(上图), © Simon Wood(下图)


2.生态环境
Dragonfly环境公司是设计团队的重要成员,其为项目提供了生态方面的专业技术咨询。项目在生态方面的主要问题包括如何为可能生存的本土动物提供栖息地、如何提高物种多样性,以及如何在施工过程中保护现有的动植物。
悉尼公园为人们创造了接近自然的机会,让人们能够再次聆听青蛙的鸣叫、等待春天里候鸟的到来。
▼维拉姆比湿地(Wirrambi Wetland)与瀑布鸟瞰 © Ethan Rohloff

▼连接古瓦力湿地和邦玛拉湿地(Bunmarra Wetland)的通道 © Ethan Rohloff

3.生物多样性
生态学是一种基于居住空间的研究。在悉尼公园项目中,这些“居住空间”包括湿地、边缘植被、林地、开敞草地,以及其间水的流动、营养循环、传粉、动植物与菌类之间的共生关系等中的物理、化学和生物过程。
每一个表面都可能成为居住空间,这是该项目生态策略及设计方案的主旨。这些表面可包括开敞水面、连接水生植物和旱生植物的边缘植被、生态滞留区域(模拟天然的季节性湿地)、种植的灌木丛及砂岩溪谷等主要的栖息地类型。
▼种植策略图 © Turf design Studio & Environmental Partnership

在大范围的景观中营造微型栖息地是一种对自然环境的模拟,可有效提高本土动植物的存活率。微型栖息地即窄小的空间,包括岩石间的空隙、茂密的水生植物之间平静的水面、厚厚的落叶堆等。项目也打造了一些特别的微型栖息地,以满足更多动物物种的需求,包括青蛙、小型鸟类、蜥蜴、哺乳动物(如蝙蝠)及诸如蜻蜓和微小水生物种一类的昆虫。
▼栖息地修复策略图 © Turf design Studio & Environmental Partnership

▼悉尼公园为本土动物提供了栖息地 © Ethan Rohloff

项目采用了湿地植物物种,不仅可以提高水质,也可为本地及外来动物提供各类栖息地,同时营造出四季皆美的低维护景观。
4.公共艺术
项目的另一个主要目标是为游客提供不同的“时刻”(moments)体验,包括视觉上的愉悦、适时的探索与研究,以及随时节变化的游赏氛围等。为了实现这些并非独立存在的目标,项目将其融合设计于系统主要的环境功能中,而在公园开放的过程中,它们又将分化为更多样的功能。
▼艺术装置策略图 © Turf design Studio & Environmental Partnership

▼公共艺术的应用可以让公众了解城市水循环的过程,为其展示难得一见的雨水净化过程。© Ethan Rohloff

▼由Turpin + Crawford工作室打造的开敞式赤陶管道,可将水从生物滞留池中引入湿地。© Simon Wood


5.各方协作
受悉尼市政府委托,特弗景观设计事务所(TDEP)集结并领导了一个由设计、艺术、科学和生态等多学科共同协作的设计团队。由此促成的“圆桌会议”也增进了来自Alluvium公司的水利专家、Turpin + Crawford工作室的艺术家、Dragonfly环境公司的生态学家、Partridge公司的工程师和来自市政府的景观设计师之间的相互交流。而Design Landscapes景观工程公司则凭借其丰富的技术经验,承担了该复杂工程的实施落成。多方的合作最终成就了这个将水资源再利用、休闲设施和栖息地交织的混合系统,使水体得以重生,并赋予这一广受喜爱的公园以新的维度。
结果与效益
悉尼公园水资源再利用项目促进了池塘、湿地系统中的水循环,从而改善了水质,提高了视觉效果并优化了滞洪蓄水的能力。公园中的水利设计平均每年转移840兆升的雨水用于净化与再利用。净化系统包括混合污染物收集装置、5000m2的生物滞留系统、湿地,以及现有的池塘。再循环的水资源通过过滤和紫外线消毒处理后用以灌溉。每年收集的3000万升水资源现在被重新利用以加强池塘水流循环、灌溉球场和村庄绿地,以及作为非饮用水供应给悉尼市一些苗圃和用于卡车清洗。
项目还旨在为悉尼公园以外的其他场地提供服务,其中包括附近的工业用地,例如混凝土搅拌站、金属回收厂、工业洗衣厂和纺织品制造厂,以及未来的城市重建项目,如阿什莫尔地区(Ashmore Precinct)和亚历山大运河改造(Alexandra Canal)等。该项目减少了饮用水的使用,改善了池塘的水质,提高了排放到亚历山大运河和波特尼海湾的雨水径流的水质,并缓和了目前出现在公园内某些区域的洪涝问题。
▼悉尼公园成为了人们的休闲好去处 © Ethan Rohloff


从更广阔的范围来说,公园通过成为本地及区域的集水区,为游客创造了引人入胜的休闲和生态新体验以及新的景观和栖息地,从而为社区带来裨益。
项目通过将水的故事可视化,在当地社区普及城市水资源管理的重要性,以及城市与自然环境的相互依赖关系。公园所具备的蓄集和净化水资源的功能与过程,通过可直观观察到的在景观中的涨落和流动而变得清晰。
在景观中展示这些过程是该设计的重要部分。Turpin + Crawford工作室设计的“瀑布”(Water Falls)将水流由水处理的末端输送回维拉姆比湿地(Wirrambi Wetland),在此过程中,“瀑布”为水的存储提供了必要的曝气过程。Turpin + Crawford工作室还与TDEP及Alluvium公司合作设计了水力“排气扇”(Exhaust Fans),展示了水从进行生物降解的“田”(paddies)转移到泻湖的过程。“排气扇”只在强降雨后的两到三个小时内发挥作用,因为彼时的水量已超过生物降解床的荷载。这些节点不仅展现了水的精神,更与地形、结构、地表、植物和动物群落相互作用。
▼“瀑布”不仅深受人们的喜爱,也是遛狗的好去处。© Ethan Rohloff

▼人们在瀑布旁的汀步上嬉戏,在起伏流淌的流水中倾听悉尼公园中水的故事。© Adam Hunter

经过一段时间的试运营之后,该水资源再利用项目现已完全开始运作,并与其所在的公园环境融为一体。公园的动植物蓬勃生长,新的栖息地和受到保护及强化的原有栖息地遍布整个公园。该项目在当地水资源的蓄集与再利用方面发挥了重要作用,是向实现“悉尼2030可持续发展规划”迈出的关键一步,并预示着将再生水网络化模式应用于当地工业中的可能。
未来展望
悉尼市政府正在寻找基于当前和过去的工程,且有望在将来实施一系列举措。这其中包括为宠物狗提供的戏水设施或者一系列“水洼”(puddles),以及在公园内建立永久性“城市农场”(City Farm)等。最近,TDEP还协助市政府重建了符合C.A.R.E.S.(社区和道路教育计划)要求的儿童自行车道,设计既保证了骑行安全,又让骑行充满了游乐的体验。
▼已竣工开放的悉尼公园儿童自行车道 © Turf design Studio & Environmental Partnership


这些举措既是对雨水收集工程的补充与平衡,也大大促进了悉尼公园的发展。悉尼公园自此从后工业的砖厂遗址转变为对当地社区起到重要影响的绿色基础设施。项目不仅为公园带来了休闲体验、视觉享受和生物多样性等多方面价值,更对相邻地区未来的可持续用水起到了至关重要的作用。
公园内的湿地将继续演化,并促进场地中景致的美化和环境的优化。人造栖息地将变得更具多样性和弹性,其中的原生植物群落也将不断稳固和繁衍,将公园多层次与多维度的价值融入当地社区。
项目信息
项目位置:澳大利亚新南威尔士州悉尼市
项目面积:16000m2
项目委托:悉尼市政府
景观设计:Turf Design Studio & Environmental Partnership
项目负责人:Mike Horne、Adam Hunter
合作团队:Alluvium、Turpin + Crawford Studio、Dragonfly Environmental、Design Landscapes、Partridge
设计时间:2012年2月
建成时间:2015年5月
所获奖项:2018年芝加哥雅典娜建筑与设计博物馆及欧洲建筑艺术设计和城市研究会国际建筑奖最佳奖、2018年第59届年度公民信托奖、2017年亚太地区国际景观设计师联合会公园和公共空间卓越奖、2016年澳大利亚景观设计师协会国家奖(基础设施类)
参考引用 / Source:
Turf Design Studio & Environmental Partnership. (2017). Sydney Park Water Re-Use Project. Landscape Architecture Frontiers, 5(1), 84-97. doi:10.15302/J-LAF-20170109
翻译 | 杨思佳 王颖
编辑、制作 | 王颖
版权声明:本文版权归原作者所有,请勿以江南电竞官网登录入口 编辑版本转载。如有侵犯您的权益请及时联系,我们将第一时间删除。
投稿邮箱:info@landscape.cn
项目咨询:18510568018(微信同号)




